Clicca sulle immagini per vederle fullscreen
- Il salotto è dalla parte opposta all’ingresso, in corrispondenza dell’apertura. Una posizione pratica, alla fine del corridoio e dopo la zona pranzo, che ha favorito la scelta di un modello con terminale a chaise-lounge per sfruttare il sottofinestra. •Applique: Ipe W2 di Rotaliana • Divano e mobile giorno: di Ikea
Dall’ingresso si accede all’ambiente giorno che è scandito dalle funzioni cucina, pranzo e salotto, in sequenza. A schermare la zona cottura rispetto al divano, la scala e il nuovo volume sottostante, concepito come vano tecnico di servizio. Leggera e poco ingombrante la nuova rampa è in lamiera nera con all’interno puntelli in ferro rinforzanti. Realizzata artigianalmente in elementi singoli di tre gradini, è stata assemblata in opera. Nella parte inferiore definisce un volume vuoto che è stato parzialmente sfruttato con una struttura a giorno per contenere, composta da nervature metalliche. Scala realizzata da Mtm (costo 5.200 euro).
- La zona cottura utilizza l’angolo definito dalla parete del bagno, dopo l’ingresso, e si affaccia sul corridoio-living con un elemento terminale a penisola, attrezzato con sgabelli. • Cucina: Riccione di Novalinea Due • Sgabelli: Hip/ss di Colico Design Nella zona di entrata sono a vista le travi originali, il cui stato di conservazione ne ha permesso il recupero. Prima consolidate, con l’inserimento di puntoni in ferro, sono state ripulite con un trattamento di sabbiatura e poi decorate a effetto decapato per attenuare il contrasto con il bianco di pareti e soffitto.
- Anche il parquet esistente – in rovere naturale – è stato mantenuto. Lamato per ripristinare e pareggiare la superficie, è stato rifinito e protetto con più mani di vernice trasparente.
A un’estremità della zona cottura, con nuovi tramezzi è stato definito il perimetro di uno spazio vuoto e aperto sul davanti – per essere direttamente accessibile dalla cucina – ma chiuso sul retro verso il salotto. In questa posizione sfrutta anche la parte sotto la rampa che sale al piano superiore. L’interno, opportunamente dotato di collegamenti agli impianti elettrico e idrico – prolungato dal lavello – è utilizzato per il frigorifero e – proprio sotto la scala – per la lavatrice. Si è riusciti così ad aggiungere una piccola lavanderia, nascosta e comoda. Realizzato “su misura”, ovvero tenendo conto della profondità dei mobili in cucina, delle dimensioni degli elettrodomestici da inserirvi, questo volume tecnico non interferisce con il passaggio in corridoio, per il quale in fase di progettazione sono stati calcolati 90 cm da lasciare liberi.
Per la costruzione di tale volume sono state utilizzate lastre di cartongesso:
si posano a secco e si fissano su montanti in alluminio che hanno funzione di sostegno.
Nell’intercapedine che si viene a formare tra le due facce
di ciascuna parete così composta si possono inserire gli impianti,
comprese le tubazioni per l’acqua.
E, una volta terminato il lavoro, la superficie può essere trattata
e rifinita come se fosse di muratura con mattoni.
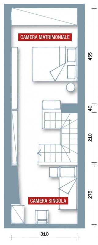
È riservato alla zona notte ed ha le due camere da letto separate dal corpo scala centrale. In entrambi gli ambienti, mobili con ante e cassetti sfruttano lo spazio lungo le pareti – altrimenti non utilizzabile – dove l’altezza risulta ridotta. Per avere comfort termico negli ambienti e limitare le dispersioni energetiche, sulle falde della copertura è stato applicato dall’interno un tamponamento di materiale coibente. Materassini di lana di roccia sono stati fissati direttamente al tetto, tra le travi dell’orditura principale esistente, poi coperti con lastre di cartongesso e tinteggiati di bianco. Si è scelto un isolante prettamente naturale che, grazie alla struttura a celle aperte, garantisce ottime prestazioni.
- Negli ambienti notte, per uniformità con il resto della casa al piano inferiore, il pavimento è in legno di rovere. A differenza del soggiorno, qui è stato necessario posarne uno nuovo e si è optato per il tipo prefinito che è già pronto da posare e dà garanzia di resistenza e stabilità. • Letto: di Cinius
- Per il bagno: soluzioni d’arredo d’effetto, realizzate con materiali di pregio, ma anche salvaspazio per sfruttare bene l’ambiente di piccole dimensioni, come il piatto doccia a filo pavimento in travertino. Il lavabo freestanding è un monoblocco di pietra appoggiato a terra, forato sul retro per lo scarico a parete; è abbinato al miscelatore a muro. Variando formato e superficie, un po’ liscia un po’ a spacco, si è ottenuto con la stessa pietra, il travertino, un rivestimento uniforme ma vivace. • Lavabo e rivestimenti: di Benetti Stone
L’abitazione occupa gli ultimi due piani di un vecchio edificio (zona giorno giù, zona notte sopra), di cui l’intervento ha conservato i tratti architettonici caratteristici, come la struttura del tetto e i serramenti, e persino il parquet al piano terra. Anche l’organizzazione dello spazio è rimasta invariata, ma è stata resa più pratica, sostituendo la vecchia scala in legno con un modello “più sottile” e soprattutto con un diverso orientamento. E con l’aggiunta di un volume tecnico al centro della casa si ricava la lavanderia. Già in passato oggetto di modifiche per il recupero del sottotetto – a suo tempo annesso alla casa che è diventata su due livelli – gli interni sono stati ora nuovamente rivisti con l’obiettivo di attualizzarne l’estetica.
Tutto il livello dell’ingresso è destinato
alla zona giorno open:
uno spazio privo di partizioni
perché le aperture sui lati corti
della casa devono aeroilluminare
l’intera superficie al piano.
Le funzioni sono perciò distribuite
in successione secondo
lo sviluppo in lunghezza,
data la larghezza di soli 300 cm.
Alla zona notte si accede
ora con una nuova scala che utilizza
il vano esistente,
ma ha uno sviluppo differente
dei gradini.
Con rampa a U e senso
di salita “orario”
(contrario al precedente)
l’elemento è meglio integrato
nel soggiorno.
Il contesto in cui è inserito l’appartamento di 41 + 30 mq (rispettivamente piano d’ingresso e sottotetto) è un tipico edificio di ringhiera: lo si evince dalla pianta oblunga con aperture alle sole estremità. Quella di ringhiera, o a ballatoio, è una tipologia di edilizia residenziale concepita intorno alla metà dell’Ottocento, in cui gli accessi agli appartamenti, che sono posti uno accanto all’altro, vengono distribuiti da un ballatoio comune esterno. Questo spiega anche il caratteristico ingresso della casa, che il progetto ha mantenuto, con doppio serramento e bussola intermedia per contrastare la differenza di temperatura tra dentro e fuori. Ma tutto l’intervento è improntato a valorizzare l’esistente originale, evitando di snaturarne il carattere, con il recupero e il rinnovo dei serramenti e dei pavimenti (laddove possibile) e soprattutto della copertura. Questo ha comportato trattamenti specifici e mirati sui diversi elementi, che hanno restituito alla casa una nuova vita. Anche l’originaria distribuzione non è stata alterata: i lavori si sono concentrati sulla scala, sostituendo la vecchia rampa in legno con una in metallo, compresa la costruzione di alcune spalle in cartongesso che delimitano il vano aperto sottoscala per gli elettrodomestici. In bagno, niente opere di muratura, ma è stato aggiunto un serramento per ottenere un antibagno, necessario con la cucina a vista; invece della vasca si è preferito poi avere un box doccia ampio.
La modifica alla scala ha permesso di centrare più obiettivi: integrare maggiormente la rampa nel living, sfruttare il sottoscala, migliorare l’arrivo al piano superiore. l Ruotando il corpo di 90 gradi e anche l’orientamento dei gradini, ora si accede alla rampa dal corridoio. l La parte sottostante è utilizzata per l’inserimento degli elettrodomestici e, in particolare, per la lavatrice che rimane nascosta, recuperando di fatto centimetri. l Lo sbarco al livello superiore adesso è al centro tra le due camere (e non più dentro la stanza singola): è più pratico e non spreca inutilmente spazio.
Progetto: Studio Patetta arch. Barbara Piccinno, Via Roncaglia 13, Milano, Tel. 02/36554145, barbara.piccinno@fastwebnet.it
Progetto illuminotecnico: Luca Gervasoni, Punto Luce Bergamo, Tel. 035/250221
Foto: Cristina Fiorentini























































