Come valorizzare gli spazi di un piccolo appartamento? A volte “aprire” gli ambienti è una soluzione che da sola non basta. In questo caso si è scelto di moltiplicare anche i punti di vista con moduli su misura che sono allo stesso tempo pezzi d’arredo e volumi architettonici, appositamente studiati per modificare e ottimizzare la distribuzione. Con quinte, mobili doppia funzione ed elementi lunghi e stretti, il risultato è quello di ottenere spazi divisi e ben organizzati, ma tra loro comunicanti. Filo conduttore, sia nella zona giorno sia nella parte notte, sono le linee contemporanee e la prevalenza di tonalità soft – dal beige al marrone, al tortora – che danno omogenietà all’insieme dell’abitazione definendone lo stile.
Clicca sulle immagini per vederle full screen
- Nel living aperto, zona conversazione e area pranzo sono divise da una panchetta in muratura su cui si innesta una quinta che fornisce anche il punto d’appoggio per la tv. Nell’ambiente, uniformato dal parquet prefinito in rovere tinto scuro, spicca il divano, rivestito in una tonalità accesa di rosso e completato da un pouf coordinato. Nella zona pranzo, al tavolo su disegno sono affiancate sedie nere Serie 7 di Fritz Hansen; il piano è illuminato dalla sospensione Stchu-moon di Catellani & Smith.

- Nella zona giorno gli elementi principali della cucina risultano schermati solo parzialmente con un sistema di quinte che non interrompe comunque l’ampia visuale all’interno dell’ambiente aperto.
Tra la zona giorno e la cucina l’obiettivo principale è stato quello di definire le diverse
aree e di arredare con moduli funzionali e capienti, riducendo però al minimo l’ingombro e anche l’impatto visivo.
1. Office a tutta altezza
La parete di fondo della zona cottura è attrezzata con un’armadiatura continua: realizzata con moduli di produzione in laccato opaco, integra anche le colonne frigo e forno e un vano aperto.
2. Quinta che nasconde
Un setto in muratura, che non arriva fino al soffitto, delimita e scherma parzialmente due elementi: verso l’ingresso un guardaroba per i cappotti; e verso la cucina un mobile chiuso da ante, utile per riporre stoviglie e bicchieri.
3. Zona operativa schermata
L’isola centrale della cucina è schermata e racchiusa da un muretto alto circa 120 cm, allineato con l’altra quinta. Verso l’interno, la struttura sospesa in pietra serena, spessa circa 15 cm, integra il bacino del lavello, senza soluzione di continuità con il piano, e la piastra a gas incassata.
4. Una panca a doppia funzione
Una struttura in cemento lisciato, mantenuta nel suo colore grigio naturale, bassa e a sviluppo orizzontale, attraversa l’ambiente dividendo la zona conversazione dall’angolo pranzo. Sistemata in posizione centrale e completata da alcuni cuscini, può servire alternativamente la zona pranzo oppure il soggiorno. Offre in questo modo, a seconda delle necessità, posti in più intorno al tavolo o sedute supplementari nell’area conversazione.
In una casa di metratura ridotta come questa, le rientranze a parete, di diverse dimensioni e funzioni sono sempre una buona soluzione per guadagnare spazio.
Le nicchie permettono infatti di ricavare vani o piani d’appoggio sfruttando lo spessore delle pareti; a volte servono per mimetizzare elementi d’arredo che, grazie alla presenza di una rientranza, risultano incassati nella muratura. Nelle abitazioni d’epoca i muri portanti sono spessi (50 cm e oltre) e consentono di aprire nicchie profonde. È sempre necessario rivolgersi però a un tecnico strutturista per verificarne la fattibilità senza che venga compromessa la stabilità dell’edificio. In altri contesti, dove i muri sono più sottili, si impiegano altre tecniche. È possibile per esempio costruire contropareti in muratura o cartongesso al fine di ottenere una profondità sufficiente per aprire delle rientranze; un’altra soluzione è quella di costruire spalle in muratura da 15-20 cm, perpendicolari alle pareti esistenti.

- La lavanderia, nell’angolo tra l’ingresso e la cucina, misura circa 1,8 mq ed è attrezzata su due lati con lavatrice e ripiani. È chiusa da una porta a bilico verticale che ingombra meno rispetto a un tradizionale battente.
Per ottimizzare al massimo lo spazio, le soluzioni d’arredo della camera da letto sono tutte realizzate su misura dai progettisti: dall’armadio al letto.
1. Il mobile-parete
A sinistra dell’ingresso, la superficie in finitura rovere rigato a tutta altezza, è il retro della libreria che si trova nell’adiacente soggiorno. Al centro del mobile è prevista una nicchia orizzontale utile come piano d’appoggio.
2. La zona studio
La parete attrezzata prosegue con uno scrittoio lungo circa 200 cm e profondo 40 cm che arriva fino alla parete di fondo. Quest’ultima è attrezzata con un armadio a tutta altezza rivestito in legno, sempre in rovere. L’effetto è simile a quello di una boiserie.
3. Nicchia illuminata
Nella parete dietro il letto, che separa la camera dalla cabina armadio, è stata aperta una rientranza profonda circa 15 cm, illuminata da faretti incassati; nella fascia inferiore è attrezzata con blocco rivestito in rovere che sostituisce la testiera e offre un comodo piano d’appoggio.
4. Inserto vetrato per avere più luce
La parete che divide il bagno dall’adiacente camera e alla quale è appoggiata la vasca è interrotta da una vetro di forma rettangolare che arriva fino a 220 cm di altezza. Grazie a questa “finestra interna”, la luce naturale può filtrare in abbondanza tra una stanza e l’altra, risultando amplificata; la finitura acidata dell’ampia superficie consente tuttavia di mantenere la necessaria privacy tra i due ambienti.
- L’unico bagno della casa occupa, nella pianta, una posizione d’angolo, strategica perché comodamente raggiungibile sia dalla camera sia dal soggiorno. L’ambiente si articola in due zone distinte: una d’ingresso, dove si trova la vasca, e quella più interna con lavabo e sanitari. La vasca rettangolare è il modello Grande di Kos. Nella zona adiacente, di fianco alla finestra, il lavabo in pietra serena con mobile su disegno in laccato lucido è completato da rubinetteria a parete della serie TMix di Bongio.Il progetto
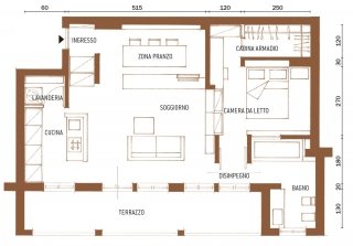
L’appartamento, esposto su un solo lato dell’edificio, ha ampie aperture affacciate sul terrazzo: il progetto valorizza questo aspetto, sia a livello di distribuzione, sia di diffusione della luce. L’ingresso, infatti, ora si apre direttamente sulla zona giorno e la cucina a vista occupa un lato dell’open space. Dalla parte opposta dell’abitazione, la camera da letto – cui è annessa una cabina armadio – è introdotta da un atrio che distribuisce anche il bagno.
Spazi di servizio organizzati
La lavanderia, nell’angolo tra l’ingresso e la cucina, misura circa 1,8 mq ed è attrezzata su due lati con lavatrice e ripiani. È chiusa da una porta a bilico verticale che ingombra meno rispetto a un tradizionale battente.Dietro il letto
È stata ricavata una cabina armadio rettangolare di circa 3 mq che sfrutta il lato lungo della stanza. Il vano indipendente è attrezzato su due lati. La porta scorrevole, grazie allo specchio applicato sull’anta, contribuisce a rendere il guardaroba anche visivamente più ampio.Progetto: M’arch’ingegno Bonfiglio e Gabrielli architetti associati Milano
Tel. 02/84891349 – https://www.studiomarchingegno.it
Foto: Cristina Fiorentini
























































