Così può cambiare una casa dei primi anni ’70, in un quartiere residenziale di Milano, dove l’intervento di ristrutturazione ha trasformato gli interni, di media metratura, in ambienti più contemporanei e vivibili grazie anche a soluzioni salvaspazio.
Nuove quindi tutte le pavimentazioni, uniformate da un rivestimento in parquet di rovere naturale; le porte sono state sostituite in fase di ristrutturazione da modelli scorrevoli interno muro; anche finestre e persiane sono state rinnovate ed è stato realizzato un efficiente impianto di climatizzazione con funzionamento ad acqua.
Queste migliorie sono andate di pari passo con quelle relative alla distribuzione degli ambienti. Le principali modifiche hanno riguardato l’area giorno che ha perso la connotazione convenzionale degli appartamenti di quegli anni: con la ristrutturazione, spazi aperti e più fruibili hanno preso quindi il posto di stanze di dimensioni anguste. Infine il bianco, contrapposto a tonalità calde ma “leggere” del legno, fa da filo conduttore dominante nelle finiture.
Gallery
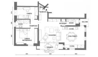
L’appartamento si trova al quarto piano dell’edificio e ha tripla esposizione sul giardino interno condominiale; lungo la facciata principale, il living affaccia su un ampio terrazzo a loggia, coperto in alto dalla soletta del balcone del piano superiore. Gli interni, che erano rimasti pressoché immutati dall’epoca di costruzione, nella ristrutturazione sono stati profondamente modificati nella distribuzione: l’originaria suddivisione della zona giorno in living, sala da pranzo e cucina indipendenti è stata eliminata a favore di un open space che fa guadagnare in metri quadrati e vivibilità. Nella parte notte i cambiamenti effettuati durante la ristrutturazione sono stati meno sostanziali ma, per conquistare spazio, si è rivelata fondamentale la sostituzione, dove possibile, delle vecchie porte interne a battente con modelli scorrevoli a scomparsa che lasciano libero il disimpegno di distribuzione delle camere e del bagno.
Dall’ingresso il percorso si snoda a elle verso il soggiorno e la cucina-pranzo. L’angolo “difficile” a destra della porta, dalla forma irregolare è stato chiuso nel corso della ristrutturazione e sfruttato come ripostiglio.
La zona notte, composta dalle due camere, matrimoniale e degli ospiti, è introdotta da un disimpegno che distribuisce anche il bagno principale. Tutte le armadiature sono state disposte in linea, lungo la parete di confine con l’ingresso e con il living.
Il terrazzo – con superficie di circa 10 mq – è “a loggia”, chiuso cioè ai due lati e coperto in alto: nello spessore dei muri perimetrali che lo delimitano sono state ricavate due capienti nicchie multifunzione. È presente nella casa un altro piccolo balcone a loggia nell’angolo opposto, dove si affacciano bagno e cucina. 


Nella zona giorno una maggiore apertura verso il terrazzo si è ottenuta sostituendo la portafinestra esistente, di dimensioni ridotte, con una vetrata dai profili in alluminio, a tutta altezza e con apertura scorrevole. Il pavimento esterno è in gres porcellanato di Cerim-Florim, all’interno il parquet in rovere è di STP. Al centro della zona conversazione, un coffee table multifunzione integra anche una sorta di “fioriera” per piccoli vasi.

L’ingresso, ribassato da una controsoffittatura in cartongesso realizzata per alloggiare l’impianto di climatizzazione, è una breve zona di passaggio che porta al living. A destra della porta, una rientranza di forma irregolare, chiusa da un battente filomuro con pannello specchiato applicato all’interno, ospita il guardaroba per i cappotti. Alla parete libera è appoggiata una consolle in rovere che offre un doppio piano d’appoggio di profondità ridotta.

Nell’intervento di ristrutturazione i progettisti hanno lavorato su soluzioni salvaspazio per contenere, sfruttando ogni rientranza e realizzandone anche di nuove. In soggiorno, a destra della zona conversazione, una sottile spalla delimita un’armadiatura su disegno a tutt’altezza: a cinque ante, in laccato bianco opaco, si sovrappone alla parete e si prolunga idealmente all’interno del bagno di servizio dove i mobili sono disposti, a seguire, in linea sullo stesso lato. Nella zona conversazione, il divano e la poltrona, rivestiti in un fresco tessuto di cotone in un colore chiaro, sono della serie Stocksund di Ikea, il tappeto in cotone è di Zara Home. Il mobile tv e il tavolo da pranzo quadrato sono stati realizzati su disegno da F.lli Busné; di Ikea sono le sedie nella stessa finitura (mod. Janinge) e la lampada a sospensione sopra il piano.
Prima della ristrutturazione, i rivestimenti a terra erano differenti nei vari ambienti: parquet diversi nell’ingresso, nella sala da pranzo, nel living e nelle camere; piastrelle nei bagni, in cucina e nelle zone di passaggio. La scelta in fase di ristrutturazione è stata quella di uniformare le superfici orizzontali: nuovo parquet in tutte le stanze, quindi, a eccezione dei bagni, dove invece sono state posate lastre di gres porcellanato.

Il vecchio pavimento in listelli di formato molto piccolo (in rovere massello lucido, finitura tipica anni ’70), è stato rimosso o in alcuni casi ricoperto durante la ristrutturazione, così come le piastrelle originali dei bagni.
Oltre che per motivi estetici, rimozione e ripristino dei pavimenti si sono resi necessari – dopo l’abbattimento dei tramezzi – per ricreare e uniformare il supporto, in quanto inevitabilmente si erano creati piccoli dislivelli e le superfici non erano più complanari.
Il nuovo parquet è un prefinito di rovere naturale leggermente spazzolato, con spessore 15 mm, che è stato incollato al supporto. La scelta di listoni grandi a bordi rettificati permette di ottenere un effetto di maggiore omogeneità. La sostituzione del pavimento è stata anche l’occasione per riparare piccole perdite nell’impianto termico condominiale a pannelli radianti.

Nell’ambiente che integra cucina e pranzo la zona operativa è aperta, posizionata ai lati opposti del locale e attrezzata con due blocchi in linea, complementari ma del tutto indipendenti, che ospitano gli elementi indispensabili. Il tavolo quadrato disposto al centro contribuisce, insieme alla doppia finestratura lungo la terza parete, a rendere la stanza visivamente più ampia e spaziosa

I mobili della cucina hanno frontali in laccato bianco opaco, top in pietra piasentina grigio scuro e alzata in rovere. Sono opere su misura di F.lli Busné, come lo scomparto a ripiani che arreda il sottofinestra. Gli elettrodomestici da incasso e il lavello sono di Franke.

Le pareti perimetrali dell’edificio hanno spessore elevato e ciò è dovuto al tipo di tecnica costruttiva, molto utilizzata nel periodo in cui è stata edificata la casa. Le murature sono infatti costituite da un doppio strato, un sandwich con cemento verso la facciata, mattoni nella parte interna e in mezzo un’intercapedine vuota che favorisce l’aerazione e garantisce anche un isolamento termo-acustico ottimale. In fase di ristrutturazione, la disponibilità di circa 50 cm di tali spessori è stata parzialmente sfruttata, nei diversi ambienti, per ricavare nicchie salvaspazio incassate, con varie funzioni. In cucina, per esempio, nell’angolo tra le due aperture si è ottenuta una rientranza rivestita internamente nella stessa finitura rovere del top e suddivisa in ripiani.

Sempre in cucina, sul lato opposto a quello con le zone cottura e lavaggio, la composizione si articola intorno al riquadro della finestra. A colonna sono incassati, uno sotto l’altro, il forno multifunzione e il microonde (di Franke).

La zona notte è introdotta da un disimpegno che distribuisce il bagno e le due camere da letto: in fase di ristrutturazione, la scelta di porte scorrevoli a scomparsa in sostituzione di quelle originali a battente ha ridotto l’ingombro sia nell’area di passaggio sia nelle stanze. Rimane così qualche centimetro in più per gli armadi su misura e si rende agevole l’apertura delle ante. Nella camera matrimoniale le finiture prediligono colori chiari e per l’illuminazione d’ambiente piccole applique sostituiscono a pieno la tradizionale sospensione centrale. Nella camera matrimoniale il letto tessile con contenitore sotto la rete è di Ikea, mentre l’armadio che occupa a tutt’altezza la parete a sinistra della porta, quella contigua al living, è stato realizzato su disegno come tutti gli altri contenitori della casa. L’applique concava in vetro sulla parete è Glenn di Rossini Illuminazione.

La finestra della stanza matrimoniale è un modello in alluminio con taglio termico, che ha sostituito il precedente infisso in legno; i vetri sono schermati da tende in tessuto di lino con sistema di sollevamento a pacchetto. In corrispondenza dell’apertura, la zona relax è arredata con una poltroncina completata da due tavolini rotondi in legno di altezze differenti; sono di Zara Home, come la stuoia in cotone. Lungo la parete di fronte al letto, di fianco alla finestra, una rientranza già esistente permette di inserire una lunga mensola, mentre la profondità della doppia cassettiera con piano d’appoggio viene utilizzata per la tv. In laccato bianco opaco e priva di sporgenti maniglie, è realizzata su misura.

A differenza degli impianti ad aria, questo funziona ad acqua e non prevede un motore esterno da posizionare sul terrazzo o in facciata; per raffrescare l’aria viene sfruttato il raffreddamento dell’acqua. Il sistema garantisce un funzionamento costante durante tutto l’anno con prestazioni anche migliori rispetto ai modelli ad aria. L’unità interna motocondensante è un cubo metallico di dimensioni molto ridotte (34 x 34 x 41 cm) installato in questo caso nel controsoffitto, sopra il guardaroba all’ingresso. Questo tipo di sistema viene utilizzato principalmente in situazioni nelle quali risulta impossibile il posizionamento dell’unità esterna sul balcone o in facciata.Nel circuito l’acqua sostituisce il gas refrigerante presente nei tradizionali impianti di climatizzazione a split. Nei diversi ambienti della casa, l’aria raffrescata viene diffusa attraverso condotti canalizzati e griglie di erogazione (nelle camere); oppure tramite uno split “a scomparsa” (in soggiorno): quest’ultimo è nascosto da una pannellatura frontale composta da lamelle in alluminio controllate tramite telecomando che si richiudono del tutto quando non sono in funzione (sistema Alasplit di Mitsubishi Electric).

Gli ambienti di servizio della casa sono due: quello più grande nella zona notte e l’altro confinante con la cucina, preceduto da antibagno e completo di attrezzatura per la lavanderia. I bagni sono accomunati dalla scelta di composizioni molto simili nelle finiture: in entrambi, i rivestimenti giocano infatti sull’alternanza e il contrasto soft tra la neutralità del gres grigio chiaro e la tonalità calda del rovere naturale; a catturare lo sguardo sono poi le note forti degli inserti in mosaico blu. I profili degli arredi dalle linee essenziali mettono ancora più in risalto gli accostamenti cromatici. Nel bagno principale, il pavimento e i rivestimenti a parete in gres porcellanato grigio opaco sono della coll. Maps di Cerim-Florim, il mosaico ceramico blu è Diva di Appiani. La boiserie decorativa nel sottofinestra, il mobile e il portasciugamani freestanding sono stati realizzati su disegno. Il lavabo da appoggio dalla linee squadrate (mod. Strada) e i sanitari (mod. Connect) sono di Ideal Standard.

Nel bagno di servizio il mobile (realizzato da F.lli Busné) con lavabo incassato e il wc (di Ideal Standard) sono organizzati sul lato lungo, mentre la mini vasca-lavatoio e lo stendibiancheria fissato a parete sfruttano il sottofinestra. La lavatrice a libera installazione con cestello maxi, inserita in un vano su misura, è di Samsung.

Nel bagno principale dell’abitazione, accessibile dal disimpegno della zona notte, i rivestimenti preesistenti erano costituiti da piastrelle lucide e di piccolo formato, in due tonalità diverse di verde per pavimento e pareti. Le superfici verticali e orizzontali sono ora uniformate da lastre di gres porcellanato grigio di formato più grande. A destra della porta, una volta rimossa la vasca, nella stessa posizione è stato installato un più funzionale e meno ingombrante box doccia, con piatto in ceramica da appoggio sul pavimento e pannellature in cristallo.
L’obiettivo è stato innanzitutto quello di fare del terrazzo un prolungamento della zona giorno. L’intento è stato raggiunto grazie alla nuova vetrata a tutta altezza, alla nuova pavimentazione e anche alle scelte d’arredo.

Sul terrazzo la nuova pavimentazione in gres porcellanato effetto legno è di Cerim-Florim, il sistema di schermatura a veneziana è di Lupak Metal. Per quanto riguarda gli arredi, il tavolo da pranzo pieghevole in metallo è Arc en Ciel, le sdraio sono il modello Bahama, entrambi di Emu. Gli sgabelli in ferro dal profilo sinuoso sono di Zara Home, così come le grandi lanterne bianche appoggiate a terra.

Il frangisole che, installato a filo della facciata, si solleva e abbassa tramite un sistema elettrico, è una veneziana con lamelle orientabili in alluminio estruso di spessore elevato, circa 2 mm. Poiché la vetrata scorrevole non è dotata di tapparella, il frangisole la sostituisce, permettendo di chiudere il terrazzo a loggia sul lato esterno, lasciando “scoperta” solo la zona aggettante sul giardino (quella con le piante in vaso). Serve a proteggere dalla luce diretta e dal calore intenso ed è anche un dispositivo di sicurezza, una sorta di “saracinesca”; la schermatura risulta totale, come quella di una persiana, quando le lamelle orientabili vengono sollevate in verticale.

Oltre a dare al terrazzo una connotazione più attuale e “cittadina”, il cambio di pavimentazione favorisce anche la rifrazione della luce naturale e avvicina cromaticamente l’esterno con l’interno della casa. Prima dell’intervento, il rivestimento a terra era, come si vede nella prima foto a sinistra, in piastrelline color cotto molto convenzionali, del tipo di quelle utilizzate nei cortili e nei garage. Senza rimuoverle, sono state coperte da listoni di gres porcellanato effetto legno, di colore grigio chiaro e in finitura opaca, disposti con posa rettificata. Il nuovo rivestimento ha comportato un rialzo di quota di circa 1 cm, e arriva ora a filo della soglia della vetrata scorrevole di comunicazione con il soggiorno.
Progetto: geom. Tommaso Mantovani (mantovanito78@tiscali.it) su idea di Titta Perticucci (titta61@gmail.com), Milano
Foto: Cristina Fiorentini


















































