Un layout più moderno, con zona giorno ampliata e un bagno in più, trasforma gli interni dell’abitazione, di metratura piuttosto ampia. Partendo da una distribuzione molto convenzionale, gli interventi murari nelle diverse aree della casa centrano il primo obiettivo – fortemente voluto dai proprietari – di aprire maggiormente gli spazi e di avere un soggiorno più grande e vivibile, ben collegato con la cucina.
La realizzazione di ribassamenti in cartongesso, funzionali dal punto di vista tecnico, consente di definire visivamente le diverse zone.
Nella parte notte della casa, anche questa divisa in modo più fruibile, è stato ricavato anche un bagno in più (il terzo ambiente di servizio).
Lo stile più contemporaneo che caratterizza ora l’appartamento si esprime attraverso l’unione di diversi elementi, in sintonia tra loro: le scelte architettoniche relative alla distribuzione; un progetto illuminotecnico studiato nei dettagli che valorizza l’insieme; finiture chiare con contrasti lievi che mettono in risalto le linee degli arredi.
Nella scelta degli arredi prevale il design attuale, accostato a qualche pezzo di modernariato.
Clicca sulle immagini per vederle full screen
Nel luminoso open space del living, zona conversazione e tavolo da pranzo sono contigui ma ben individuati: il camino, incassato nella porzione di muro tra le due finestre, funge da raccordo tra le due aree; nella colonna di rivestimento in cartongesso che nasconde la canna fumaria sono state ricavate tre piccole nicchie per i libri. Il divano angolare, in tessuto bianco con passamanerie sartoriali in evidenza, è rivolto verso la vetrata e il mobile tv su ruote appoggiato a parete (Driade). La grande lampada da terra bianca a braccio orientabile, che illumina il piano del tavolo e si estende quasi fino al divano, è la Great JJ di Leucos. 
- L’ingresso si apre sull’open space della zona giorno e sulla destra, parzialmente schermata dal volume del pilastro, c’è subito l’area pranzo, inquadrata da un tappeto con bordo rosso. Molto comoda da raggiungere anche dalla cucina, è arredata con un tavolo di Cattelan dal piano in marmo e con le sedie di design contemporaneo.
- Nella zona conversazione, l’unica parete tinteggiata di grigio risalta e assume centralità visiva nell’ambiente, anche perché la superficie è inscritta da una cornice bianca, costituita dallo zoccolino in legno verniciato che la “stacca” da terra e da fasce bianche in alto e ai due lati. Appoggiata alla parete, la sagoma tonda di un’insolita cassa acustica di design di Bang & Olufsen, in rosso vivace. Appoggiato sul mobile tv, il candelabro a forma di corallo Tenochtitlan di Driade.


Lounge Chair & Ottoman Anno: 1956 Design: Charles & Ray Eames Produttore: Vitra • Il design di quest’icona anni ’50 nasce come variante moderna delle poltrone dei club inglesi. La chaise-longue, completa di poggiapiedi, viene proposta in tante finiture, ma la più diffusa resta quella in pelle; la scocca di schienale e seduta è in legno.

Pouf Koishi Anno: 2004 Design: Naoto Fukasawa Produttore: Driade • Si ispira ai sassi nei giardini zen giapponesi questo pouf dalle linee morbide, utilizzabile anche come tavolino. La struttura è in fibra di vetro, verniciato in diversi colori.

Neoz Anno: 1996 Design: Philippe Starck Produttore: Driade • La sedia fa parte di una collezione che comprende anche poltroncina a sgabello: rivisita nel design le tradizionali sedute in legno massello. La struttura ha finitura in mogano, naturale o ebanizzato.
- In soggiorno, il sistema scorrevole esterno muro in vetro specchiato è il modello Velaria di Rimadesio. Il parquet, utilizzato in tutta la casa a parte cucina e bagni, è in rovere naturale effetto olio (Velvet di Bruno Parquet). La parete che divide il soggiorno dalla cucina, obliqua per esigenze di layout, dà maggiore dinamicità allo spazio giorno. Una porta scorrevole con pannelli vetrati esterno muro, che si raccolgono su un solo lato, chiude la zona cottura. Quando è aperta permette un collegamento visivo con l’ambiente adiacente.
Oltre a riproporzionare l’altezza della cucina e a definire un cambio di quota a soffitto lungo il perimetro del soggiorno, il ribassamento in cartongesso con spessore di circa 45 cm, che interessa quest’area della zona giorno, ha anche la funzione tecnica di alloggiare gli elementi dell’impianto di climatizzazione, le diverse tipologie di corpi illuminanti e l’impianto acustico per la filodiffusione. Non soltanto: nel controsoffitto è anche incassato il binario per lo scorrimento del doppio pannello specchiato che divide la cucina dal living.
L’impianto canalizzato
Il sistema di climatizzazione funziona grazie a due macchine: un’unità esterna installata sul balcone e una interna, integrata nel volume del controsoffitto, sopra l’ingresso. L’aria fresca (o calda) viene erogata tramite le bocchette presenti in ogni stanza e la temperatura è regolabile in modo indipendente con telecomandi singoli; nel living, che è l’ambiente più grande, vi sono più fori di erogazione dell’aria che, protetti da griglie, si aprono nell’altezza del controsoffitto. Sonde di temperatura sono montate in corrispondenza di ogni bocchetta.
Una linea luminosa
Per illuminare il soggiorno e anche per individuare il percorso verso la zona notte, è stata installata nel controsoffitto una serie di faretti a led con diametro di 2 cm; in più, anche uno strip led, inserito in una fessura a gola proprio lungo la linea tra la sommità della parete e il soffitto che corre lungo tutto il profilo, anche sopra il binario dei pannelli scorrevoli.
- In cucina la composizione (Elam by Tisettanta) si sviluppa in linea sui due lati lunghi ed è comodamente fruibile anche nella zona in cui la stanza si restringe, a ridosso della finestra. Da una parte sono stati sistemati in successione piano cottura e lavello, incassati nel piano in marmo bianco di Carrara; di fronte trovano posto il bancone snack, sempre in marmo, gli sgabelli, le colonne frigo e il forno (multifunzione e microonde di Electrolux). Nel ribassamento in cartongesso della cucina, due lunghi tagli convergono dall’ingresso verso la parete di fondo della stanza, disegnando un triangolo a soffitto: quest’originale soluzione consente di installare strisce luminose a led a tutta lunghezza. Il secondo obiettivo raggiunto è quello di sottolineare la forma dell’ambiente e l’andamento obliquo delle pareti.
- Nella zona notte, e in particolare nella stanza matrimoniale, l’impatto visivo gioca sulla tenue alternanza del bianco e del grigio chiaro; unico elemento di stacco è lo sfondo color miele del parquet a terra. Nella stanza, il box doccia in muratura, ricavato in uno spazio dietro il letto, è concepito – per la sua posizione e struttura – come parte integrante della stanza. Ai due bagni, a uso esclusivo delle camere, se ne aggiunge un terzo, completo di vasca, al quale si accede dal disimpegno. In camera, in corrispondenza della doccia, il ribassamento del soffitto fa da tetto alla cabina (pannelli e attrezzatura interna di PDP) e dà una maggiore compattezza all’insieme. A sinistra si apre il vano del bagno. Appoggiato alla parete, il giroletto tessile è completato da una composizione di cuscini in bianco e grigio.
Il bagno accessibile dalla camera matrimoniale è di piccole dimensioni, solo 3 mq; per poter comunque disporre di un box doccia ampio e confortevole (la vasca è già presente in un altro ambiente di servizio della casa) la scelta progettuale è stata quella di ritagliargli uno spazio dedicato direttamente all’interno della stanza. Installata dietro il letto sfruttando la parete di fondo, la cabina in muratura – lunga 240 cm e profonda 80 cm – è addirittura un modello “per due”. Risulta visivamente collegata con la stanza grazie a un’ampia finestra interna rettangolare chiusa da una vetrata fissa trasparente, che consente la comunicazione diretta tra i due spazi. Il concept è molto scenografico, anche perché il box doccia è dotato di un sistema di illuminazione con cromoterapia e di faretti wash-wall (cioè a cascata di luce sulla parete). L’accesso alla cabina doccia avviene su uno dei due lati corti tramite un’anta a battente, senza profili per una maggiore leggerezza; l’altro lato corto è invece chiuso da un taglio vetrato fisso. Dentro la doccia, la muratura è rivestita in gres porcellanato con texture materica in rilievo effetto pietra che fa risaltare il gioco delle luci. Il soffione è un modello a incasso.
- Nel bagno i profili di vasca e lavabo freestanding spiccano nel contrasto con il pavimento in gres porcellanato grigio dall’aspetto di pietra naturale (Supergres). La vasca è addossata a una controparete centrale che, sporgendo di circa 50 cm rispetto al muro retrostante, permette di ricavare, ai lati, due nicchie attrezzate con ripiani. Il lavabo Tuba di Antonio Lupi, in Cristalplant, ha una particolare formache ricorda lo stelo di un fiore. La rubinetteria a parete è di Frisone. Un ovale luminoso sopra la vasca da bagno: sua esatta proiezione, ne riproduce le dimensioni (il lato più lungo è di 180 cm, il più corto di 80 cm). Con questa idea progettuale è stato possibile illuminare direttamente dall’alto il bacino della vasca. Nello spessore di circa 10 cm dell’ovale, ritagliato nel controsoffitto, sono infatti stati installati faretti a led, di due tipologie diverse, lungo il perimetro e al centro.
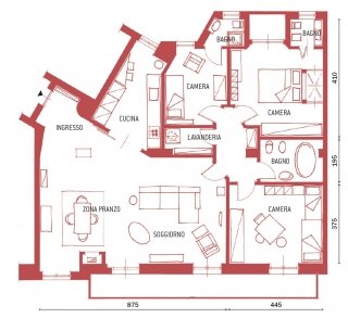
l’appartamento di circa 130 mq, caratterizzato dall’irregolarità della pianta su un lato, è stato ristrutturato ripensando completamente la distribuzione interna. La maggior parte dei tavolati è stata demolita per ridisegnare le geometrie degli ambienti; l’intervento è stato anche l’occasione per un totale rifacimento degli impianti tecnici. 

La “passerella” lunga e stretta che dall’ingresso distribuiva a destra e a sinistra gli ambienti è stata di fatto eliminata, aprendo così di più gli spazi, aumentando la superficie delle stanze e rendendo i collegamenti più diretti.
Come cambia il soggiorno
In origine suddivisa in più ambienti distinti secondo uno schema molto tradizionale, la zona giorno è ora uno spazio aperto, dove l’unico elemento di scansione interna è il pilastro portante.
La forma della cucina
L’ambiente, che si apre a sinistra dell’ingresso, ha una parete perimetrale non rettilinea; realizzando un tramezzo inclinato anche tra living e zona cottura si è ottenuta una sorta di “compensazione” e si è potuta così aumentare la superficie utile della cucina.
Un disimpegno al centro
Anche se non c’è più il corridoio, è stato comunque previsto un filtro tra living e zona notte, in corrispondenza del pilastro portante. Dal disimpegno si accede alle due camere e al ripostiglio/lavanderia.
Il bagno in più
Al centro della pianta, il nuovo layout ha permesso di ricavare spazio per un altro ambiente di servizio che si aggiunge a quelli a uso esclusivo delle due camere. Il nuovo bagno è accessibile dal disimpegno e comodamente fruibile dalla camera dei ragazzi.
Progetto: arch. Fabrizio Santuccio, Tel. 02/97274052, architetto@santuccio.it
Foto: Cristina Fiorentini




























































