Nel loft openspace è la posizione dei mobili a individuare le varie zone. Nella parte ribassata del soppalco si trova la cucina a vista, formata da una composizione lineare e da basi metalliche che creano una separazione dalla zona pranzo. Come nel resto dell’ambiente, tutto è giocato sul contrasto tra le calde tonalità del legno e la nitida brillantezza dell’acciaio.
Clicca sulle immagini per vederle full screen

- Sotto il soppalco in legno, di nuova realizzazione, si trova la zona home office, arredata con mobili di linea essenziale, in vetro e metallo. I contenitori metallici sono di Tecno, così come le sedute e i due tavoli della serie Nomos; quello sullo sfondo, disegnato da N. Foster, è stato prodotto in serie limitata. La lampada da terra in vetroresina ecologica è il modello E.T.A. di Kundalini.

- La cucina realizzata su disegno si articola in più blocchi, dove quello principale è formato da una composizione lineare a parete, con basi in legno che richiamano le partizioni orizzontali e verticali. Data l’altezza ribassata, al posto dei tradizionali pensili si è optato per una mensola che occupa tutta la larghezza della zona operativa. Bottiglie colorate, utilizzate come elementi decorativi, ravvivano l’insieme. Di fronte sono stati inseriti due blocchi freestanding in acciaio dall’impronta hi-tech. Il pavimento è in resina. La zona operativa a vista è valorizzata dal parapetto in multistrato di pino che scherma il soppalco soprastante e da arredi nella stessa finitura che stemperano il rigore del metallo e contribuiscono a dare uniformità all’insieme.

- Il piano di lavoro è organizzato in modo semplice ma efficace. Il lavello sottotop e la zona cottura sono sistemati in modo da lasciare ampie superfici d’appoggio e di lavoro su entrambi i lati. Gli elettrodomestici sono tutti mimetizzati nella parte sottostante, compreso il frigorifero. I capienti vani per contenere compensano la mancanza di pensili.
Il primo è utilizzato per le partizioni orizzontali e verticali, l’altro per alcuni mobili e complementi d’arredo.
Multistrato
I pannelli si ottengono da sottili fogli di legno, incollati tra di loro con le fibre poste in senso alternato e in numero dispari (almeno 5), per uno spessore di 8-30 mm. Il multistrato è resistente, stabile e facilmente lavorabile. Teme tuttavia l’umidità, per questo viene sottoposto a un trattamento preventivo sull’intero volume del pannello. Un discorso a parte merita il multistrato marino, resistente all’acqua e all’umidità, utilizzato nell’arredamento delle costruzioni navali: i fogli vengono ricavati da varie essenze di mogano, altamente resistente, incollate mediante colle fenoliche o melaminiche e trattate per renderlo idrofugo.
Acciaio hi-tech
Lega di ferro e carbonio, l’accaio utilizzato in cucina è solitamente quello inossidabile, contenente principalmente cromo e nichel, particolarmente resistente all’ossidazione e alla corrosione. Idrorepellente, igienico e robusto, è adatto a tutte le superfici sottoposte a forti sollecitazioni, come lavelli, top, piani cottura, per ante e strutture di mobili.

- Sul soppalco di nuova costruzione ampio spazio è occupato dal soggiorno, dove è stato ricavato anche un piccolo angolo studio. Le strutture divisorie sono realizzate con pannelli in multistrato di pino esclusivamente montati a secco. Il solaio di nuova costruzione è stato realizzato con travi in acciaio rivestite in pannelli in multistrato di pino, materiale dominante in tutta l’abitazione. Divano e seduta sono il modello Duplex di P. Lissoni per Matteograssi.

Per valutare fattibilità, modalità costruttive, dimensioni e caratteristiche occorre rivolgersi a un professionista, architetto o ingegnere, che effettuerà i controlli per assicurare la stabilità e la portata necessarie e si occuperà inoltre di tutte le verifiche relative agli aspetti normativi.
Le varie tipologie
I soppalchi più semplici sono costituiti da piani che poggiano su un sistema orizzontale formato da travi e travetti, sostenuti da pilastrini che partono dal pavimento del locale sottostante. Le strutture portanti sono in genere in ferro, mentre il piano del pavimento è costituito da pannelli legnosi sopra i quali viene posato il rivestimento. In alcuni casi, nella parte inferiore, la struttura del soppalco è nascosta da un tamponamento in cartongesso o in perlinature lignee. Per evitare i pilastrini a pavimento, un’alternativa è quella di “appendere” il soppalco tramite montanti che si agganciano agli elementi strutturali del soffitto. Se di piccole dimensioni, si possono anche realizzare soppalchi sospesi, privi cioè di elementi di sostegno verticali. In questi casi il peso della struttura è retto da travi metalliche posate da parete a parete, incassate nelle murature che nella maggior parte dei casi sono quelle portanti dell’edificio. Con interventi di maggiore entità, seguendo lo stesso procedimento che si impiega per realizzare le solette degli edifici, si possono costruire soppalchi in cemento armato o in calcestruzzo alleggerito; si tratta però in genere di soluzioni adottate in fase di edificazione del fabbricato, più difficili e complesse da aggiungere successivamente.

- La scala che porta al soppalco, lineare e addossata alla parete, si trova al centro del piano terra, dividendo così la zona giorno dai due bagni. Lo spazio libero sotto è stato sfruttato per inserirvi una console nello stesso materiale, realizzata su misura.

- La camera sul soppalco è un volume chiuso, raccolto ma ben illuminato da grandi infissi con apertura a vasistas e da due aperture a forma di oblò con vista sull’open space. Il letto è assemblato con una struttura in legno rialzata da terra che serve come base del materasso, appoggiato al centro; il bordo intorno diventa un comodo piano d’appoggio. Sulla parete opposta, tra i due oblò, è stato inserito un vano a giorno che offre spazio aggiuntivo per contenere. Tutto realizzato su misura. La lampada è il modello Abyss di Kundalini.

- Il bagno, al piano terra, ha il soffitto rivestito in legno, come la vasca freestanding. Questa, schermata su entrambi i lati da tende arricciate, è collocata proprio di fronte alla finestra. Oltre alla rubinetteria installata in una colonna esterna, viene aggiunto un soffione per la doccia, fissato a parete. Una controparete,in cui è stato inserito il vano a giorno, è stata costruita per il passaggio degli impianti. Il lavabo è integrato in un contenitore sospeso.

1 Ingresso – 2 Disimpegno – 3 Antibagno – 4 Zona studio – 5 Zona giorno – 6 Cucina – 7 Bagno – 8 Disimpegno – 9 Lavanderia

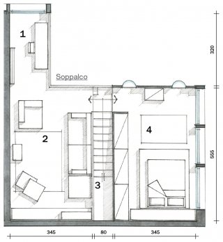
1 Angolo studio – 2 Zona conversazione – 3 Scala – 4 Camera
Progetto: architetto Davide S. Carnevali – da71de@gmail.com
Foto di Cristina Fiorentini

















































