Ha un’ampia superficie di circa 96+103 mq l’abitazione unifamiliare che si sviluppa su due livelli: una costruzione contemporanea sia nel progetto architettonico sia nelle finiture degli interni e nelle scelte d’arredo. La struttura dell’edificio è costituita da quattro volumi a forma di parallelepipedo che si intersecano parzialmente tra di loro, formando un complesso articolato. La ricerca della luminosità ottimale, tenendo conto dell’esposizione multipla della casa, ha giocato un ruolo importante nel progetto. Grandi vetrate, protette da frangisole, sfruttano anche le posizioni d’angolo, prolungandosi in alcuni casi dal piano terra a quello superiore, quasi senza soluzione di continuità. Gli ambienti sono grandi e aperti, caratterizzati da scelte cromatiche sobrie; nelle diverse stanze, i rivestimenti in pietra serena grigia evidenziano alcune porzioni di muratura.
Clicca sulle immagini per vederle fullscreen
- Nel living aperto, illuminato da ampie superfici vetrate, la zona conversazione-tv è arredata con un divano rivestito in pelle, completato da un pouf coordinato che serve anche come piano d’appoggio, e da una poltroncina bianca. La struttura della scala a giorno che porta al piano superiore, con gradini in legno di wengé a sbalzo nel muro, attraversa il volume a doppia altezza. • Divano: design Taco Langius • Pavimento in gres: Linea Casamood Neutra di Florim
- Nel living, senza necessità di inserire elementi divisori in muratura, zona conversazione e area pranzo formano comunque isole funzionali ben individuate. Le lastre in gres a pavimento, di colore chiaro, enfatizzano la luminosità naturale degli spazi aperti. La zona pranzo è arredata da un tavolo rettangolare con piano in vetro acidato che, in una lunghezza e profondità ridotte, può comunque ospitare comodamente sei persone; le sedie coordinate alternano due colori differenti – grigio e bianco – riproponendo così due delle tonalità dominanti nell’ambiente. •Tavolo: Baron di Calligaris (prezzo nella versione base, 945 euro) • Sedie: Boheme di Calligaris (prezzo nella versione base 162,50 euro) • Lampada a sospensione: Lenticchia di Viabizzuno, design Peter Zumthor.
- In cucina la penisola svolge anche la funzione di elemento di separazione tra zona pranzo e area operativa: la struttura integra da una parte il lavello e il piano cottura, dall’altra è completata da sgabelli e utilizzata come piano snack. Sulla parete di fondo, invece, sei moduli a colonna in finitura rovere moro formano, uniti, un’armadiatura compatta in cui sono incassati il frigorifero, il forno multifunzione e il microonde. • Programma cucina: Twelve di Varenna • Cappa a soffitto: Vario AC 402 di Gaggenau • Lavello: Foster • Piano a induzione: Scholthès
- Per l’evacuazione dei fumi e il ricambio dell’aria, è stata installata una cappa a scomparsa integrata nel ribassamento in cartongesso, di circa 35 cm, del soffitto. Rimane visibile solo un inserto in acciaio inox (100 x 40 cm), con due alette che si possono aprire o chiudere per orientare il flusso dell’aspirazione. Si tratta di una cappa tecnologicamente innovativa, di ultima generazione: il motore non si trova, come nei modelli tradizionali, nel corpo dell’apparecchio, ma si installa all’esterno. In questo caso è stato posizionato sul tetto, ma può trovare posto anche in facciata. Il controsoffitto nasconde quindi solo il cavo di collegamento al motore e il condotto della canna fumaria. Questa soluzione ha diversi vantaggi pratici: la cappa ha una potenza molto elevata, si può installare a qualsiasi altezza dal piano cottura (quelle tradizionali devono stare a 65-90 cm, non di più) ed è silenziosissima.
- La balconata al piano superiore, affacciata sul soggiorno, è ampiamente sfruttata con librerie a giorno disposte lungo le pareti. In corrispondenza dell’angolo e della vetrata, dove lo spazio a disposizione si amplia, è stata ricavata un’area relax arredata con due poltrone. Il piano di calpestio è rivestito in wengé. • Libreria: Expedit di Ikea • Poltroncine bianche: Solsta Olarp di Ikea
Dall’esterno all’interno: dettagli di progetto:
1. Frangisole scorrevoli: installati esternamente agli infissi, si spostano lungo un binario proteggendo in modo alternato le vetrate dall’irraggiamento solare. I frangisole, realizzati su disegno del progettista, hanno la struttura in alluminio prevernicato e lamelle orientabili in legno.
2. Cambi di quota a soffitto: realizzati in diverse zone del piano terra (a cominciare dall’ingresso) e di quello superiore, i controsoffitti in cartongesso riproporzionano gli ambienti; ciascuno di essi è stato progettato anche con la funzione tecnica di alloggiare componenti impiantistici.
3. Illuminazione nascosta: la balaustra della balconata, in ferro verniciato bianco e vetro temperato, è completata nella fascia inferiore da una veletta in cartongesso alta 40 cm. Questo elemento architettonico, lungo il perimetro, somma alla funzione estetica quella pratica: verso l’interno, consente infatti l’incasso di una serie di faretti dimmerabili con la ghiera intonacata nella veletta, e quindi invisibile.
4.La scala a 90°: per riuscire a sviluppare tutte le alzate nello spazio a disposizione e raggiungere il primo piano senza dover aumentare la pendenza della scala, i primi due gradini sono stati sistemati a 90° rispetto al resto della rampa, formando un piccolo pianerottolo a circa 35 cm di altezza.
- Nella zona notte, all’arrivo della scala, un disimpegno con soffitto ribassato distribuisce le camere da letto. In quella matrimoniale, che integra guardaroba e bagno, l’uniformità cromatica delle finiture rende l’atmosfera soft e rilassante.
- Tessile protagonista: i toni neutri di bianco, grigio e beige accomunano la biancheria del letto e il rivestimento in pelle della struttura imbottita. Negli stessi colori i tendaggi doppi: sotto, teli bianchi di lino, leggeri e semitrasparenti; sopra, una stoffa più pesante, coprente al 98%. Un muro “composito”: la parete dietro il letto è movimentata da un gioco di profondità sfalsate: in corrispondenza della testiera, nella fascia superiore del muro, una veletta aggettante consente l’incasso, sotto, di faretti per la lettura. Anche la colonna rivestita in pietra serena, a sinistra del letto, è leggermente più sporgente rispetto alla parete intonacata di bianco. Tra i due blocchi murari è stato realizzato un taglio verticale di 10 cm che lascia filtrare la luce nell’adiacente cabina armadio.
- Un locale con superficie di circa 8 mq collega la camera matrimoniale con il bagno a uso esclusivo e svolge quindi sia la funzione di guardaroba sia quella di disimpegno tra i due ambienti. La pianta irregolare della cabina armadio è stata “ritagliata” con questa forma per sfruttare al massimo lo spazio tra camera da letto e bagno, tenendo conto anche della posizione delle aperture lungo la parete perimetrale. ● Definendo con questi criteri i percorsi interni alla camera e l’organizzazione del guardaroba, la finestra più grande viene così a trovarsi nella camera da letto, mentre quella adiacente, più piccola, è integrata nella cabina armadio. ● Lo sviluppo in pianta di quest’ultima ha inoltre permesso di definire al suo interno due aree, separate da una sorta di breve corridoio che indirizza il passaggio verso il bagno. ● Lo spazio più grande è attrezzato con armadiature che si sviluppano su tre lati: moduli speciali permettono di sfruttare al meglio anche gli angoli; mentre dall’altra parte del miniambiente, in corrispondenza della finestra, sono sistemate le scarpiere e i vani per gli accessori. ● Il soffitto del guardaroba è stato ribassato solo parzialmente con una struttura in cartongesso, a pianta rettangolare: questa consente l’incasso dei faretti e nasconde il motore dell’impianto di climatizzazione. ell’interno del guardaroba elementi con struttura modulare in laccato bianco opaco, tutti di produzione, sono stati adattati allo spazio disponibile e sembrano fatti su misura. Sono stati previsti vani chiusi e aperti, cassetti e barre appendiabiti. • Programma cabina armadio: Ikea • Faretti: Viabizzuno • Letto camera: Elise di La Falegnami (in pelle, nella versione base, 3.656 euro).
- Nel bagno adiacente la camera le finestre alte formano una fascia quasi continua di luce. Sotto, la zona della vasca è evidenziata dal rivestimento monocromatico a parete in lastre di gres antracite; piastrelle bianche rettangolari, posate in orizzontale, fanno invece da sfondo al mobile in wengé con i lavabi da appoggio. • Lavabi: Fonte Tonda di Ceramica Flaminia • Vasca idromassaggio: Una di Novellini
- All’interno del box doccia in muratura le piastrelle in gres di forma lunga e stretta posate in orizzontale ottengono l’effetto di allargare visivamente l’ambiente. L’alternanza delle due tonalità in contrasto scandisce distanze e altezze. • Piastrelle: Stone Collection White e Anthracite di Marazzi
- Tutti a mosaico i rivestimenti del bagno al piano terreno: la miscela sulle tonalità di bianco, beige e blu è stata scelta per le pareti, il pavimento e anche il piano del lavabo, in legno realizzato su misura. • Lavabo: Egg di Pozzi Ginori (256 euro) • Rubinetteria: RU 228 di Cristina Rubinetterie
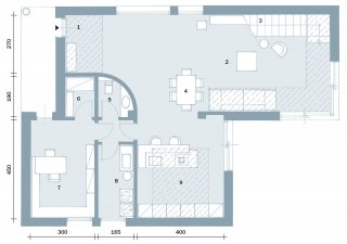
Piano terra
Al piano terra l’open space del living, che si sviluppa a elle, gode di ampi affacci su tre lati. Nell’angolo della pianta opposto alla zona giorno si trovano invece lo studio e gli ambienti di servizio.
Parete curva, passaggi fluidi: L’ingresso dell’abitazione introduce direttamente nella zona giorno dove s’incontra prima l’area pranzo, quindi il soggiorno. A destra dell’entrata, la parete stondata che delimita il bagno “spezza l’angolo”, indirizzando il percorso verso la cucina; lo spazio operativo è ben individuato ma comunque a vista sul resto dell’ambiente.
Massima funzionalità: Dalla cucina un piccolo disimpegno distribuisce il bagno per gli ospiti, la lavanderia e lo studio che comunica direttamente con l’esterno tramite un ingresso secondario. Non si è trascurato di prevedere, in questa zona della casa, anche un comodo locale ripostiglio.

Primo piano
A doppia altezza: Il percorso del piano superiore si snoda da una parte verso la zona notte, dall’altra verso la balconata che, correndo lungo il perimetro, si affaccia sul soggiorno sottostante. La zona centrale del volume è stata lasciata a doppia altezza: viene così favorito il passaggio della luce tra i due livelli della casa
Progetto: arch. Cristina Orsi acristinaorsi@gmail.com Foto: Cristina Fiorentini





























































