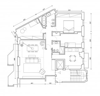
Un appartamento di 130 mq – al quinto piano di una palazzina anni ’70 a Milano sui Navigli, in origine rifinito con boiserie in legno a parete e carta da parati in colori scuri e moquette a pavimento – era caratterizzato da un layout tradizionale con molti corridoi.
Obiettivo primario del nuovo progetto è stato quello di ottimizzare al meglio tutto lo spazio e renderlo funzionale e flessibile per le esigenze della vita contemporanea, lasciando la cucina separata, esaltando la luce naturale e dando agli ambienti un look contemporaneo caratterizzato da tocchi eclettici. A causa della pianta irregolare e della presenza quindi di diverse pareti non ortogonali bisognava inoltre studiare una disposizione funzionale, non scontata, di arredi o elementi come sanitari e vasca nel bagno.
Per i pavimenti, è stato scelto un parquet di rovere, elegantemente posato a spina ungherese in tutta la casa, a esclusione di cucina e bagni, dove si è preferito usare una resina spatolata.


Il soggiorno, un unico ambiente con salotto e zona pranzo, mantiene le funzioni ben definite anche grazie alla presenza di controsoffitti di diverse altezze con illuminazione integrata, come la lunga lama di luce sulla parete vicino al tavolo – per definire visivamente gli spazi.(Lampada da terra Arco di Flos, design Castiglioni; poltrona Vanity Fair by Potrona Frau, libreria a colonna PTolomeo.

Al centro stanza il divano, con arredi di famiglia lungo lo schienale e il bracciolo, divide in due gli spazi.
Libreria su misura con elementi irregolari e sfalsati per ospitare tv, libri, vasi; per Un decoder e dv, un elemento chiuso. Poltrona: Vanity Fair by Potrona Frau; lampada parentesi di Flos.

Sopra l’ingresso è stato realizzato un ribassamento con faretti rotondi a incasso e una libreria in quota; un pratico armadio vicino alla porta di entrata risulta parzialmente a giorno. Per la zona pranzo, tavolo in cristallo e sedute diverse accomuntate dal colore.

A contrastare con il colore bianco, finitura prevalente per muri e mobili, alcune parti di parete sono valorizzate da una tinteggiatura grigia. Come sulla parete di fondo su cui spicca un quadro.

La stessa alternanza grigio-bianco caratterizza il corridoio attrezzato con arredo su misura effetto boiserie, che dà accesso alla cucina.

I mobili della cucina sono anch’essi realizzati su misura e si sviluppano su due lati fronteggianti con il tavolo nel mezzo. Ante senza maniglie con apertura a gola, piano in corian con lavello integrato e finitura delle pareti in resina spatolata. Elettrodomestici Siemens e a parete piatti Fornasetti.

L’armadio è un vecchio modello recuperato riverniciando le ante in essenza per dare più luminosità all’ambiente. Il letto in una delicata nuance sui toni del beige con testiera imbottita trapuntata è inserito in una grande nicchia poco profonda, con illuminazione integrata.

Nel bagno il piano della vasca di forma irregolare e del mobile bagno è in conglomerato di marmo. Tutte le finiture degli arredi su misura sono in teak, essenza adatta negli ambienti umidi. A parete una resina spatolata. Lavabo Nuda di Flaminia, Vasca Kaldewei Classic duo, Rubinetterie Nostromo di Fantini.

Nello stesso bagno il mobile lavabo in teak con lavabo da appoggio è completato a parete da una specchiera composta da tre pezzi di diversa misura. Una grande nicchia in muratura offre piano d’appoggio per dei quadretti che decorano la parete in resina spatolata. Sanitari Sfera di Catalano, Rubinetterie Nostromo di Fantini, Lampada Riga di Fontana Arte.

Nel secondo bagno, in resina colore grigio scuro, contrasta il mobile laccato rosso lucido, realizzato su misura, con lavabo in appoggio e specchio vintage. Lavabo Velis e sanitari New Light di Catalano, Rubinetterie Nostromo di Fantini, luci Talo di Artemide.
Progetto: arch. Francesca Ferlazzo Natoli con arch. Chiara Gnisci – https://www.ferlazzonatoli.com
Arredi su misura: arch. Lorenzo Santambrogio
Fotografie: Luca Villa e Roberto Gelmetti
Communication & PR: Paola Secchiaroli





















































