Contenuti trattati
Un colore denso, avvolgente e mai eccessivo attraversa ogni ambiente e diventa il vero filo narrativo di questa casa di 100 mq alle porte di Napoli. Una tonalità calda e profonda di rosso – scelta come segno identitario – cuce insieme living, zona pranzo e camera da letto in un’unica esperienza visiva coerente e sofisticata.
La ristrutturazione, seguita con cura sartoriale e grande attenzione ai dettagli, nasce dal desiderio dei proprietari di vivere in uno spazio contemporaneo, personale e ricco di atmosfera. Il risultato è un interno elegante, caldo e altamente scenografico, dove materiali, texture, arredi e luci dialogano in modo fluido.
Il progetto di questa casa dimostra come il colore, se usato in modo calibrato, possa ridisegnare gli ambienti senza alterarne la struttura. Materiali scelti con cura, dettagli sartoriali e giochi di luce definiscono un’abitazione contemporanea, accogliente e ricca di identità. Il risultato è una casa che sembra più ampia, più luminosa e soprattutto più personale.
Tutto l’intervento è costato in totale 200mila euro (lavori edili e forniture: € 100.00 e arredi e suppellettili: € 100.00).
Guarda la nostra sezione dedicata a “Abbinamenti di stili e colori”
Foto casa di 100 mq
Se vuoi vedere le altre nostre case di 100 mq
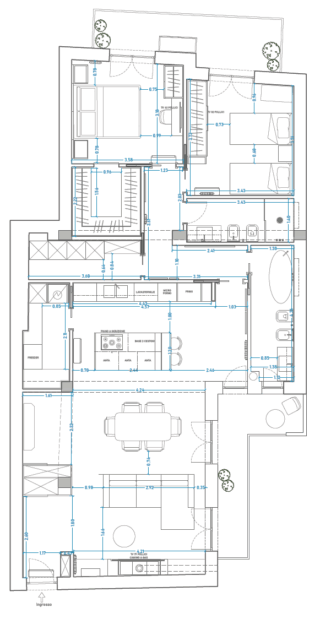
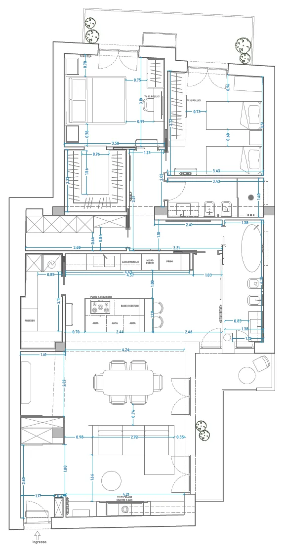
Progetto casa di 100 mq: planimetria con arredamento e misure
Living: il camino diventa il punto di partenza del colore
Il percorso cromatico della casa inizia nel living. Qui il camino rappresenta il basamento visivo e fisico da cui si irradia il rosso che caratterizza l’intero progetto. Le superfici opache si alternano a dettagli più brillanti, mentre arredi e volumi assumono tonalità calibrate. La luce morbida amplifica la profondità dei colori, definendo un ambiente contemporaneo, rilassato e avvolgente.

Nella zona conversazione: divano: Dalton di Ditre Italia (www.ditreitalia.com); tavolino laterale Shuffle MH1 di &Tradition (www.andtradition.com); tappeto di Sitap (www.sitap.it); ampolle: di EDG Enzo De Gasperi (edg.it); coffee table Clessidra di Midj (www.midj.com); cuscini di Christina Lundsteen (christinalundsteen.com) e Dedar (it.dedar.com); parquet di Cp Parquet (cpparquet.it)

Di fronte al divano: camino di British fires (www.britishfires.it); lampada Amami di Artemide (www.artemide.com). A lato: tavolino Shuffle MH1 di &Tradition (www.andtradition.com). A parete: foto Archivio Riccardo Carbone (www.archiviofotograficocarbone.it).

Tappeto di Sitap (www.sitap.it); coffee table Clessidra di Midj (www.midj.com); ampolle: di EDG Enzo De Gasperi (edg.it).
Ante a specchio aumentano la profondità visiva
Zona pranzo: luce, convivialità e proporzioni studiate
Al centro del living si apre la zona pranzo, pensata per ospitare momenti di convivialità familiare. Il tavolo – elegante e allungabile – diventa il fulcro dell’area giorno, mentre madia e armadio nascosto dialogano con specchi e pannelli che ampliano la percezione dello spazio.

Per la zona pranzo: sedie Foyer di Calligaris (www.calligaris.com); tavolo Podium di Bontempi (www.bontempi.it); sospensioni Press di Tom Dixon (www.tomdixon.net).
L’angolo che non ti aspetti: madia, specchi e atmosfera sartoriale
Un angolo del living ospita una composizione raffinata e sorprendente: madia, specchi, pannellature e oggetti decorativi creano profondità e introducono sfumature esotiche. Il rosso si alterna a superfici riflettenti e parati incorniciati, arricchendo la narrazione cromatica dell’intera abitazione.

Nella foto: madia Perf di Diesel with Moroso (moroso.it); orologio a parete di Nomon (nomonshop.com); lampada Flowerpot VP9 di &Tradition (www.andtradition.com); candelieri Glass bead di Pip Studio (www.pipstudio.com); pouf e cuscino di Jane Churchill (www.janechurchill.com); pouf piccolo di Nobilis (nobilis.fr).
Cucina: un fondale scenografico in nero carbone
La cucina a vista funziona come una quinta scenografica della zona pranzo. Il nero carbone delle superfici principali crea uno sfondo grafico e immutabile, su cui materiali e colori risaltano con forza. Un ambiente essenziale e raffinato, pensato per accompagnare la quotidianità senza rinunciare a una forte identità visiva.

Cucina di Modulnova (www.modulnova.it); sgabelli Nenè di Midj (www.midj.com); sedie Foyer di Calligaris (www.calligaris.com); tavolo Podium di Bontempi (www.bontempi.it); sospensioni Press di Tom Dixon (www.tomdixon.net); stampa a parete con soggetto Breathe di Paper Collective (papercollective.com).
In camera, l’abbraccio del rosso
Qui il colore raggiunge la sua massima espressività. Il rosso avvolge la parete dietro il letto, stratifica le texture e crea un ambiente intimo, protettivo e fortemente caratterizzato. Una tinta meditativa e profonda, elegante e mai eccessiva, che trasforma la stanza in un rifugio personale. Perfetto come filo conduttore tra i diversi ambienti, il rosso diventa una presenza sofisticata che definisce lo stile della casa.
Guarda altre soluzioni con il rosso usato in casa

Per la camera: letto di Flou (flou.flou.it); – Cuscini: Dedar – Lampada: Tom Dixon – Poster: Her, Paper Collective – Termoarredo: Tubes – Pittura Sikkens
Bagno: la palette cromatica come strumento compositivo
Anche nel bagno, il colore struttura lo spazio e ne definisce le funzioni. Attorno al lavabo, le piastrelle beige formano un volume caldo e vibrante, enfatizzato dalla vasca integrata in cemento e dalla rubinetteria nera a parete. In contrasto, le mattonelle bianche delineano la zona dei sanitari e della doccia, ampliando visivamente l’ambiente. Il vetro ambrato aggiunge un tocco prezioso, mentre i dettagli neri creano ritmo e contemporaneità.
Guarda altre soluzioni per il bagno per ispirarti

Per il bagno: pavimento e rivestimento: collezione Lume di Marazzi (www.marazzi.it); rubinetteria di Bongio (www.bongio.com); sanitari di Ceramica Cielo (www.ceramicacielo.it); scaldasalviette di Tubes (www.tubesradiatori.com); accessori di Geelli (geelli.com).

Per il bagno: pavimento e rivestimento: collezione Lume di Marazzi (www.marazzi.it); rubinetteria di Bongio (www.bongio.com); sanitari di Ceramica Cielo (www.ceramicacielo.it); scaldasalviette di Tubes (www.tubesradiatori.com); accessori di Geelli (geelli.com).
Secondo bagno: eleganza materica e dettagli sartoriali
Nel bagno con vasca, l’ingresso è dominato da una vasca freestanding. Alle sue spalle, una nicchia incassata nel disegno delle mattonelle rivela un dettaglio sartoriale che racconta la cura del progetto. Il lavabo completa uno spazio in cui funzionalità ed estetica convivono armoniosamente, sullo sfondo di un verde intenso e sofisticato.
Guarda le soluzioni per avere la vasca in un bagno piccolo

Per il bagno: pavimento e rivestimento: collezione Lume di Marazzi (www.marazzi.it); rubinetteria di Bongio (www.bongio.com); sanitari di Ceramica Cielo (www.ceramicacielo.it); scaldasalviette di Tubes (www.tubesradiatori.com); accessori di Geelli (geelli.com); tavolino Lato LN8 di &tradition (www.andtradition.com); interruttori: serie Living Now di Bticino (www.bticino.it).
Progetto: architetto Carmine Abate – Viale Giacomo Leopardi n.12/14 – Frattamaggiore (Napoli), Tel. 081/3938620, info@carmineabate.it, https://www.carmineabate.it
Foto: Carlo Oriente
































































