Contenuti trattati
Ricavare il secondo bagno adiacente al primo
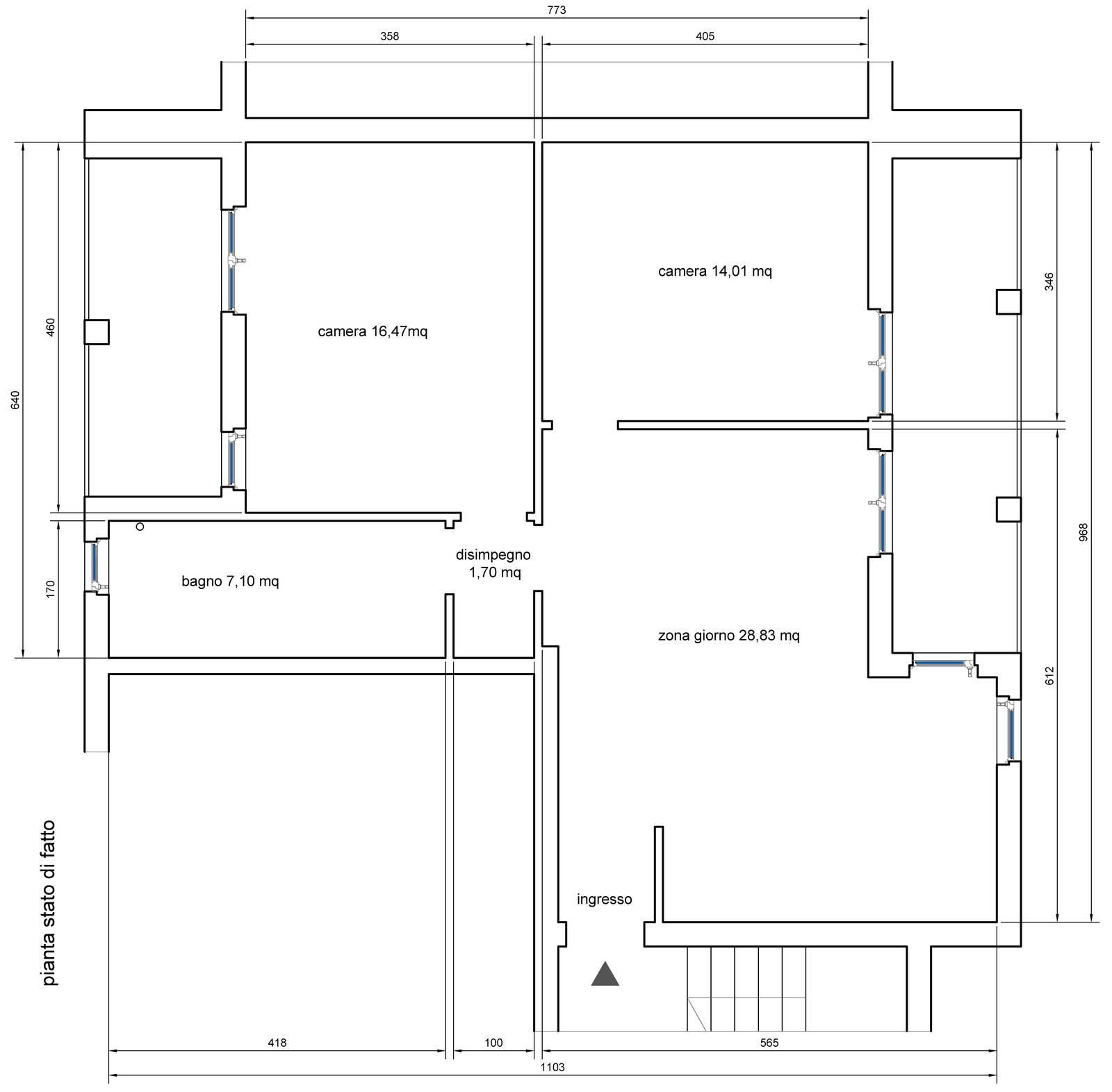
Il bagno in più in un appartamento normale o di dimensioni contenute non è detto che si possa “ritagliare”. Tra i fattori da valutare, ovviamente la metratura totale ma anche la forma della planimetria, la presenza o meno di finestre. Il progetto qui sotto, elaborato per una lettrice dall’architetto Ornella Musilli, ricava il secondo bagno in un appartamento con due camere, un soggiorno con cucina a vista e un locale di servizio. Da dove si è recuperato lo spazio necessario, senza penalizzare troppo altri ambienti? Clicca qui per vedere anche le demolizioni/costruzioni e sapere di più sul progetto.
Aggiungere un bagno con la doccia sulla camera da letto
Quando si ristruttura un appartamento, soprattutto antecedente gli anni ’70, aggiungere un bagno e una camera è uno degli obiettivi più frequentemente perseguiti. Spesso alla richiesta del secondo bagno si accompagna anche quella di rivedere la zona giorno in modo più contemporaneo. Come nel progetto sotto, dove per il nuovo bagno si richiede di avere doccia e lavatrice e in quello esistente una doccia aperta sulla camera da letto. Nel nuovo layout, il bagno, prima accessibile solo dal disimpegno, ha ora un secondo ingresso direttamente dalla camera da letto. Clicca qui per vedere anche le demolizioni/costruzioni e sapere di più sul progetto.
Da un bagno a due, aggiungendo anche una stanza
A volte ricavare un nuovo bagno può essere occasione per creare altri notevoli miglioramenti in un appartamento, come per esempio aggiungere una camera a quelle già presenti. In queste planimetrie sotto, si vede come si può procedere con le modifiche ipotizzate senza penalizzare nessuna funzione, anzi implementando la zona notte: occorre trasformare la cucina in stanza aggiuntiva e ingrandire il bagno esistente, sdoppiandolo poi in due separati. Clicca qui per visualizzare anche la pianta dei lavori.
Creare un nuovo accesso al bagno
Negli appartamenti molto piccoli può essere necessario rendere il bagno accessibile da tutti gli ambienti e non solo solo dalla stanza matrimoniale, come nel caso della casa di vacanza raffigurata nelle piante qui sotto. Possono essere diverse le soluzioni percorribili e dipende anche dalla fattività reale, dalla posizione degli impianti e dalla possibilità di spostarli… Il nostro archietto Ornella Musilli ne ha individuate 5 diverse, a seconda che si voglia mantenere il bagno nella stessa posizione oppure no, spostare la camera o il soggiorno. In questo caso la posizione dal bagno resta invariata per contenere i costi dei lavori e viene cambiata la collocazione della stanza. Qui ve ne mostriamo una, ma cliccando qui potete vedere anche le altre 4 ipotesi di progetto.












































