Contenuti trattati
La doccia passante è una soluzione architettonica che nasce dall’incontro tra esigenza funzionale e ricerca estetica: un dispositivo spaziale capace di ridefinire il rapporto tra ambienti contigui e, allo stesso tempo, di migliorare l’efficienza distributiva della casa. Si tratta di un espediente progettuale sempre più apprezzato in interventi di ristrutturazione, dove l’obiettivo è ottimizzare superfici ridotte o trasformare un bagno tradizionale in un luogo più fluido e contemporaneo. In alcune case realizzare una doccia passante può essere una scelta utile per sfruttare meglio lo spazio.
Dal punto di vista tecnico e impiantistico, la realizzazione di una doccia passante richiede un’attenta pianificazione: occorre prevedere pendenze adeguate per lo scarico, verificare la possibilità di spostare le linee di adduzione e di scarico senza compromettere le strutture, e gestire in modo corretto l’impermeabilizzazione, spesso su due lati contrapposti. Anche la ventilazione e l’aerazione — naturale o meccanica — devono rispondere ai requisiti minimi fissati dai regolamenti edilizi comunali e dal D.M. 5 luglio 1975, con particolare attenzione ai casi in cui la doccia mette in comunicazione ambienti diversi, come camera e bagno.
Dal punto di vista progettuale, la doccia passante diventa una soglia trasparente o semi-trasparente che unisce e allo stesso tempo separa, permettendo di ampliare visivamente lo spazio e di introdurre materiali, luci e texture che dialogano con entrambe le stanze. Può servire a ottimizzare gli spazi disponibili creando due bagni da uno solo, oppure a utilizzare al meglio un bagno lungo e stretto.
Le soluzioni possono essere dunque molte: posizionata in genere come elemento di connessione tra una camera da letto e un bagno, la si trova collocata anche tra due bagni (spesso ricavati da uno più grande) o in configurazioni più sperimentali, dove per esempio la doccia funge da filtro tra zona lavabo e area vasca.
Non si tratta, dunque, di una semplice variante distributiva, ma di un intervento di microarchitettura domestica che incide sulla qualità percepita degli ambienti e che, se progettato con rigore tecnico e sensibilità estetica, può trasformare anche spazi di pochi metri quadrati in ambienti raffinati e funzionali.
Che cosa si intende per doccia passante
Quando si parla di questo tipo di doccia, si fa riferimento a una soluzione che prevede la possibilità di accedere alla zona doccia da due diversi ingressi.
In genere ciò avviene tra la camera da letto e il bagno, ma i due ambienti possono anche essere due bagni adiacenti, il bagno e la cabina armadio, o due camere.
Si tratta quindi di una soluzione funzionale e utile sotto diversi profili, che però diventa anche una scelta estetica e di design.
Perché realizzare una doccia passante
Le motivazioni per costruire una doccia passante possono essere diverse.
Può essere un modo per risolvere il problema di uno spazio lungo e stretto, che in questo modo viene suddiviso in più aree consecutive.
Molto spesso viene creata quando da un solo bagno più grande, se ne ricavano due più piccoli ma perfettamente funzionali e ben organizzati, per esempio un bagno principale e uno di servizio: la doccia passante può essere utilizzata in entrambi i bagni, risparmiando spazio.
Allo stesso modo contribuisce a ottimizzare gli spazi se creata tra la camera da letto e il bagno, o tra due camere, perché anche in questo caso la doccia può essere fruita da entrambe le stanze.
La doccia passante è anche una bella soluzione estetica perché aumenta la percezione dello spazio e fa apparire gli ambienti più ampi.
Doccia passante nel bagno lungo e stretto tra lavabo e sanitari
La doccia passante può essere anche inserita in un bagno che ha una forma rettangolare stretta e lunga: in questo modo il bagno viene suddiviso in diverse aree funzionali, di cui la doccia risulta quella centrale, posta tra lavandino e sanitari.

Questo bagno, che è quello principale della casa, è ripartito in 3 aree, ossia una prima zona con lavabo, la doccia passante e i sanitari, attraverso delle divisioni in vetro satinato. Il vano doccia, che presenta un piatto a filo pavimento ed è rivestito in resina, è delimitato dal vetro su entrambi i lati: la sua estetica è molto leggera a livello visivo, risultando così elegante, oltre che ben illuminato. Progetto Studio Manna, Architettura biocompatibile, Milano studiomanna73@gmail.com – Foto Studio Roy – Styling Chiara Dal Canto – Per vedere tutta la casa clicca qui
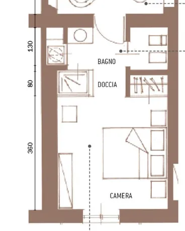
Doccia passante tra camera da letto e bagno en suite
Una prima idea da copiare può essere quella di creare un’ampia zona notte che includa anche altre funzioni, quali la doccia e il guardaroba, tutti collegati tra loro e facilmente accessibili.
Doccia passante tra camera e resto del bagno, comunque con altro accesso
La doccia può essere posizionata in modo che possa essere accessibile sia dalla zona notte sia dall’area del bagno riservata al lavandino: si riesce così a inserire tutte le funzioni anche in uno spazio molto ridotto.

Il bagno, posto tra il soggiorno e la camera da letto, è suddiviso in diverse aree, con la zona lavabo e lavanderia, i sanitari separati da un’anta scorrevole e la doccia. La doccia passante, leggermente rialzata e chiusa con vetro trasparente che la lascia a vista, è accessibile dalla camera da letto e dalla zona lavabo. Questa suddivisione permette di avere tutte le funzioni in un ambiente di piccola metratura. Progetto studio Archisbang Torino, Tel. 011/6981443 https://www.archisbang.com – Foto Cristina Fiorentini – Per vedere tutta la casa clicca qui
Doccia passante tra bagno e vasca
Una soluzione veramente particolare è quella di realizzare una doccia in un certo senso “passante” (perché per raggiungere la vasca bisogna attraversarla) tra bagno e zona vasca separata.

In questo bagno, che è al servizio della camera da letto, dall’area dedicata a lavabo e mobile si accede tramite una grande vetrata trasparente, per metà fissa e per metà scorrevole, a un vano, interamente rivestito in ceramica, che contiene vasca e doccia. La doccia passante possiede uno scarico a terra con griglia centrale filo pavimento e un grande soffione di 50 centimetri incassato nel controsoffitto. Si tratta di una soluzione progettuale molto inconsueta, che si rivela anche bella sotto il profilo estetico. Foto Adriano Pecchio – Styling Laura Mauceri – Progetto Studio Enzo Ferrara architetti, Milano, Tel. 02/320625046 https://www.enzoferrara.it – Per vedere tutta la casa clicca qui
















































