Contenuti trattati
Bisogna dirlo: la dimensione del bagno non è un requisito trascurabile ai fini del comfort abitativo. La sua metratura incide direttamente sulla qualità d’uso quotidiana, sulla libertà di movimento e sulla percezione complessiva dello spazio domestico. Tuttavia, ridurre il tema a una semplice questione di centimetri sarebbe limitante: è il progetto, più che la superficie, a determinare il risultato finale.
Anche un bagno di dimensioni contenute può trasformarsi in un ambiente efficiente, equilibrato e sorprendentemente accogliente, a patto che venga affrontato con un approccio progettuale rigoroso. Non si tratta di “far stare tutto”, ma di costruire una gerarchia chiara tra funzioni, ingombri e percorsi, eliminando il superfluo e valorizzando ogni singolo elemento.
In questo senso, il bagno piccolo diventa un esercizio di precisione, dove ergonomia, tecnica e sensibilità estetica devono convivere senza compromessi. Mai trascurare, quindi, quella manciata di metri quadri che, se ben organizzata, può ospitare un servizio completo o integrare quello principale con grande efficacia.
La sfida progettuale consiste nel trasformare i vincoli – impianti, geometrie irregolari, aperture – in opportunità, attraverso soluzioni intelligenti e spesso su misura.
In fase preliminare è fondamentale analizzare con attenzione la posizione degli scarichi e delle colonne montanti, elementi che orientano inevitabilmente la distribuzione interna.
A partire da questi dati, si definisce il layout rispettando distanze minime indispensabili: almeno 20-25 cm tra i sanitari, 15-20 cm tra questi e le pareti, e uno spazio di utilizzo frontale di almeno 60 cm per il lavabo. Parametri apparentemente tecnici, ma decisivi per garantire comfort e funzionalità anche negli ambienti più compatti.
A completare il progetto intervengono poi le scelte dei materiali, l’illuminazione e il disegno degli arredi, che contribuiscono a costruire un ambiente armonioso e visivamente più ampio.
È proprio nella cura di questi aspetti che il bagno piccolo smette di essere un limite e diventa uno spazio progettato con intelligenza, capace di coniugare estetica e praticità.
Come progettare un bagno piccolo: regole fondamentali
L’obiettivo non è riempire lo spazio, ma renderlo fluido e leggibile. La progettazione di un bagno di piccole dimensioni richiede rigore e sintesi. Ogni centimetro deve essere sfruttato con logica, evitando sovrapposizioni e privilegiando soluzioni integrate. Tra i principi chiave:
- scegliere elementi compatti e proporzionati
- privilegiare volumi sospesi per alleggerire la percezione visiva
- ridurre gli ingombri delle aperture (porte e box doccia)
- integrare contenimento e funzione
Idee salvaspazio per il bagno piccolo
Bagno di 3 mq: organizzazione minima ma efficace
In una superficie molto contenuta, lo spazio si configura come una vera e propria “cellula funzionale”. La disposizione lineare è spesso la più efficace, con gli elementi principali allineati lungo una o due pareti.
La doccia, preferibilmente a tutta larghezza sul lato corto, consente di ottimizzare lo spazio disponibile. Le aperture devono essere studiate con attenzione: sistemi scorrevoli o pieghevoli evitano ingombri inutili e migliorano la fruibilità.
Un’altra strategia efficace è l’integrazione delle funzioni, ad esempio con sanitari combinati o lavabi compatti con piano integrato.

La porta scorrevole lascia spazio d’azione davanti al lavabo. Doccia all’estremità, a tutta larghezza: comoda e compatta

Apertura salvaspazio anche per la doccia. Omega di Disenia come in foto, in vetro con apertura a soffietto, misura L 100 x H 198 cm, spessore vetro 6 mm. Prezzo a partire da 844 euro Iva esclusa. https://www.disenia.it

Due in uno: vaso+bidet. Dal design sobrio e discreto e con caratteristiche premium, AquaClean Alba di Geberit misura L 37,5 x P 56,5 x H 41,5 cm e costa 1.000 euro + Iva. https://www.geberit.it

Ampio, anche con doppio bacino e top d’appoggio. In Opalite, disponibile bianco come in foto, in tutti i colori di cartella del vetro, in opalite bianco o nero. Basin Top di Artelinea, misura fino a L 240 x P 70 cm. Prezzo da rivenditore. https://www.artelinea.it
Bagno di 3,5 mq con vasca: comfort compatto
Quando la pianta tende al quadrato, anche una metratura contenuta può accogliere una vasca. La chiave è scegliere modelli dalle dimensioni contenute e dalle geometrie morbide, capaci di inserirsi senza appesantire. Il progetto si arricchisce attraverso:
- piani lavabo sviluppati in lunghezza, che ampliano visivamente lo spazio
- finiture coordinate, che evitano frammentazioni visive
- contrasti materici calibrati, per dare profondità
La qualità delle superfici diventa determinante per elevare la percezione complessiva dell’ambiente.

La porta a battente nasconde i sanitari. Il piano d’appoggio allungato amplia la prospettiva e allunga visivamente l’ambiente. Finiture pregiate – come parquet a pavimento e gres effetto pietra alle pareti – per un mood raffinato ed elegante.

Ovale e con misure contenute, anche la vasca trova posto. In Novotech con effetto soft touch, Sand di Novellini in finitura argilla alga con interno bianco opaco, da L 167 x P 81 x H 61 cm costa 4.380 euro. https://www.novellini.it

Compatto, ma profondo e con bordi sottili: supercomodo! In Dolotek, con texture setosa Chrea di Acquabella misura Ø 40 cm x H 22,9 cm e costa 568,52 euro (Iva inclusa). https://www.acquabella.com

I sanitari sospesi in ceramica sanitaria Skyla di Villeroy & Boch sono resistenti e facili da pulire. Il wc è dotato di sistema TwistFlush e chiusura delicata SoftClosing. Il sistema QuickRelease consente di rimuovere e riposizionare i sedili con la massima facilità. Misurano il wc L 37 x P 53 x H 31,5 cm ed il bidet L 37 x P 53 x H 21,5 cm. Prezzo wc+sedile 675 euro e bidet 353 euro. https://www.villeroy-boch.it
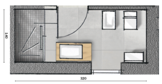
Bagno di 4,5 mq con doccia: percezione dello spazio
In ambienti stretti e allungati, la progettazione lavora sulla percezione. Uno specchio a tutta parete sopra il lavabo è una soluzione efficace per amplificare visivamente lo spazio.
La doccia può svilupparsi in larghezza, con chiusure trasparenti che non interrompono la continuità visiva. Anche lo spazio sotto la finestra, spesso trascurato, può diventare una risorsa progettuale, non in questo progetto dato la sua posizione non sul lato corto.
L’uso della luce artificiale, contribuisce in modo decisivo alla qualità dello spazio.

Lo spazio sotto la finestra è interamente sfruttabile. Per la doccia a tutta ampiezza, un box in vetro extra chiaro per alleggerire l’insieme.

Con le ante scorrevoli la doccia può essere maxi. Con profili in tutti i colori Ral o in finiture Metal, Meta di Glass 1989, misura L 90/180 x H 220 cm max. Come in foto costa 1.275 euro. https://www.glass1989.it

Il lavabo Milù 60 in tekno Deimos bianco opaco di Arbi Arredobagno ha linee essenziali che valorizzano ogni ambiente bagno. La finitura opaca dona un tocco sofisticato e materico. Misure totali: L 60 x P 39 x H 15 cm. Prezzo al pubblico: 494 euro + Iva. ww.arbiarredobagno.it

Super compatti, dal design ergonomico. Della serie i.life S di Ideal Standard, i sanitari misurano L 35,5 x P 48 cm. Il bidet costa 264 euro; il wc con scarico RimLS costa 300,50 euro. Tutto + Iva. https://www.idealstandard.it
Bagno di 5 mq: suddivisione intelligente degli spazi
Quando la metratura lo consente, è possibile introdurre una separazione funzionale tra le aree. Anche una semplice nicchia o una parete leggera possono ridefinire la distribuzione, migliorando comfort e privacy. Una soluzione efficace prevede:
- lavabo in prossimità dell’ingresso
- zona servizi schermata
- doccia collocata in posizione più riservata
L’utilizzo di porte scorrevoli o a scomparsa consente di ottimizzare ulteriormente lo spazio, evitando interferenze nei percorsi.

Il lavabo all’ingresso sembra un ambiente a sé. Sanitari e doccia risultano protetti alla vista e separati. Anche nel piccolo, le irregolarità architettoniche si trasformano da vincoli in occasioni per organizzare e contenere.

Con struttura attrezzata, per sfruttare lo spazio. Della serie DuraStyle di Duravit il lavabo a consolle appoggia su una base a giorno. Nella versione da L 100 x P 48 cm costa 926 euro, mentre la struttura sottostante ha un prezzo a partire da 633 euro. https://www.duravit.it

L’anta a libro verso l’interno è perfetta per la doccia piccola/media. A6 9000 di Arcom ha l’anta a soffietto con maniglia interna ed esterna orizzontale. https://www.arcombagno.com

I volumi con profilo arrotondato sono visivamente leggeri. Con finitura PureGuard, i sanitari Essence di Grohe costano 716,75 euro cad. Il bidet misura L 35 x P 54 cm; il wc misura L 36 x P 54,5 cm. https://www.grohe.it
Materiali e illuminazione: ampliare lo spazio visivamente
Un progetto ben calibrato non si limita alla funzione, ma costruisce un’esperienza spaziale coerente e armoniosa.
La scelta di materiali e finiture è strategica. Superfici continue, colori chiari e texture omogenee contribuiscono ad ampliare la percezione dello spazio. Alcuni accorgimenti progettuali:
- utilizzare rivestimenti continui per evitare interruzioni
- preferire tonalità luminose o neutre
- inserire contrasti solo in punti focali
- valorizzare la luce con illuminazione diffusa e puntuale
Arredi e soluzioni salvaspazio per bagni piccoli
Nel bagno compatto, ogni elemento deve assolvere a più funzioni. Gli arredi diventano dispositivi progettuali, non semplici accessori.
Tra le soluzioni più efficaci:
- lavabi poco profondi o integrati con contenitori
- radiatori attrezzati con ripiani, quindi salvaspazio in quanto doppia funzione
- mobili a sviluppo verticale
- accessori integrati nelle strutture
Anche i dettagli fanno la differenza: portaoggetti, specchi contenitore e sistemi modulari contribuiscono a mantenere ordine e leggerezza visiva.
Metro alla mano, ecco una rassegna di elementi per risolvere in bellezza e praticità anche un ambiente di dimensioni particolarmente ridotte.

Libero 4000 Colour Up Your Life di Duka è walk in con anta pieghevole; misura L 75 x P 120 x H 200/210. Prezzo su preventivo. https://www.duka.it

Nouveau di Ex.t la vasca in LivingTec, performante e piacevole al tatto, misura L 130 x P 110 x H 62 cm e costa 8.871 euro in bianco e 13.124 euro in rosa cipria, Iva esclusa. https://www.ex-t.com

Soft AS di Provex ha porte scorrevoli soft close in vetro temperato 8 mm. Misura L 80 x P 80 x H 200 cm e costa 2.795 euro. https://www.provex.eu

Della serie Pura di GSI il wc con smalto antibatterico e sistema di scarico Swirlflush misura L 35 x P 46 cm e costa 353 euro. https://www.gsiceramica.it

I sanitari della linea Vignoni XS di Simas misurano L 37 x P 48 cm. Il wc rimless costa 699 euro; il coprivaso 314; il bidet 642. https://www.simas.it

Il lavabo Acquaceramica Mini di Colavene nella foto è con base Rovere Primitivo; misura L 35 x P 35 x H 60 cm e costa 335 euro. https://www.colavene.it

Della collezione Liquid di VitrA Bathrooms il catino in porcellana misura Ø 40 x H 14 cm. Prezzo da rivenditore. https://www.italy.vitrabathrooms.com

Di Scarabeo Hung è dotato di taglio portasciugamani. Misura L 40/50/60 x P 22 x H 9 cm e costa da 215 euro + Iva. https://www.scarabeosrl.com

Geometrica di Bertolotto ha telaio KSKT e finitura laccato opaco seta con decoro inciso sull’anta. Misure e prezzo su preventivo. https://www.bertolotto.com

Talèa T25F di Flessya rototraslante, in laccato bianco 9010, maniglia Apri ottone lucido, misura L 80 x H 210 cm e costa 1.224 euro + Iva. https://www.flessya.com

Il controtelaio da cartongesso Syntesis Line di Eclisse L 80 x H 210 cm, con pannello grezzo, maniglia, nottolino e serratura costa da 950 euro. https://www.eclisse.it

Il dispenser portasapone Viverso di Reuter, collezione x elo in finitura nero opaco, è realizzato in metallo e vetro satinato. Prezzo al pubblico 107,69 euro IVA inclusa. Disponibile solo su https://www.reuter.com

La piantana con portarotolo e portascopino di Inda in acciaio inox spazzolato misura L 50 x P 16 x H 85 cm e costa 586 euro. https://www.inda.net

Credence di Leroy Merlin a 4 barre in acciaio nero, con contenitori e specchio misura L 42 x H 167 cm e costa 52,50 euro. https://www.leroymerlin.it

Quadraqua di Irsap offre anche ripiani. Come in foto misura L 30 x P 30 x H 111,6 cm e costa 1.708 euro + Iva. https://www.irsap.com

Window di Cordivari Design, ad acqua o elettrico, è in acciaio colorato. Misura L 55-110 x H 49,5 e costa da 1.210 euro. https://www.cordivaridesign.it

Pit di Brem ottimizza lo spazio e offre punti di appoggio per le spugne. Misura L 32 x H 132 cm e costa a partire da 919,80 euro. https://www.brem.it






































































