Contenuti trattati
I faretti rappresentano una soluzione versatile e moderna per illuminare e arredare gli interni, adattandosi a ogni stile abitativo, dal minimalista al classico. Disponibili in diverse tipologie come incasso o a vista, a soffitto, a parete o a pavimento, consentono di valorizzare spazi e dettagli architettonici, creando giochi di luce e ombre.
La scelta del tipo di faretto, della temperatura di colore e della posizione deve tenere conto sia della funzionalità che dell’estetica, per un’illuminazione personalizzata.
L’illuminazione da faretto, a differenza di quella diffusa, permette di indirizzare la luce in punti precisi, consentendo così una visione ottimale. Gli spot valorizzano ogni spazio ed esaltano arredamento, dettagli e oggetti di design, rivelandosi una soluzione pratica e moderna e allo stesso tempo regalando un gioco di luci graduale.
I faretti da incasso sono impiegati prevalentemente per favorire lo svolgimento delle attività che si compiono in un determinato ambiente. Possono essere installati in molteplici superfici, come soffitti e controsoffitti in cartongesso, pannelli in legno, mensole, pavimenti, muretti, pareti e all’interno di tutte quelle superfici dove è possibile praticare un foro. La loro struttura, una volta montati, fuoriesce dal muro, in un perfetto gioco tra luce e design. Molto versatili, alcuni tipi di faretti possono essere adattati alle esigenze: una volta installati, si integrano perfettamente all’interno del muro o del controsoffitto, per un effetto a scomparsa totale, valorizzando architettura della stanza, arredi e oggetti di design.
I faretti da incasso possono essere anche fissi o direzionabili, cioè dotati di meccanismo per cui è possibile indirizzare il fascio di luce nella direzione desiderata. Inoltre, i faretti direzionabili possono essere anche singoli o multipli, cioè composti da un corpo in metallo a cui sono collegati diversi spot orientabili da parete.
Le luci per i faretti oggi sono perlopiù lampade led, dato che le alogene – l’evoluzione delle classiche lampadine ad incandescenza a filamento di tungsteno – sono state bandite dal 2018. I led garantiscono il massimo della luminosità e dell’efficienza energetica, evitando anche la dispersione di calore. Inoltre non emettono raggi UV dannosi per pelle e occhi, hanno una durata fino a cinque volte superiore rispetto alle lampadine tradizionali e resistono ad urti e scosse. Un faretto a led ha una durata media che può arrivare anche fino a 15 anni (fino a 50.000 ore effettive secondo gli standard EN50107) e consente un risparmio sulla bolletta fino all’80%.
Come sono fatti i faretti
A differenza di altre soluzioni di illuminazione, i faretti permettono di indirizzare la luce con precisione, valorizzando singoli elementi d’arredo o specifiche aree della stanza. Grazie alla loro capacità di focalizzare la luce, i faretti sono ideali per creare giochi di luce dinamici, che possono essere dosati con grande precisione. Questo tipo di illuminazione non sarebbe possibile con altre tipologie di impianti illuminotecnici.
I faretti moderni sono realizzati con strutture interne in materiali resistenti al calore, come gesso, metallo, acciaio o plastica termoresistente, che ospitano il portalampada. Inoltre, molte soluzioni sono dotate di flangia in alluminio anodizzato o acciaio inox per una migliore dissipazione del calore, garantendo un’efficienza termica ottimale. Alcuni modelli sono anche dotati di proiettori a incasso orientabili, che permettono di regolare la direzione del fascio luminoso, adattandosi alle necessità estetiche e funzionali dell’ambiente.
È fondamentale che la struttura del faretto sia progettata per resistere al calore prodotto dalla lampada, prevenendo il surriscaldamento e garantendo una corretta ventilazione. Inoltre, i faretti LED, che sono diventati sempre più diffusi, offrono un’ulteriore garanzia di sicurezza ed efficienza energetica, poiché generano meno calore rispetto alle tradizionali lampadine alogene.
Tipologie di faretti
Le categorie principali che contraddistinguono gli spot sono quelle da incasso e a vista.
Faretti a vista: la luce emessa è sempre puntuale ed esistono anche in versione direzionabile, ma rimane visibile l’intera struttura, compreso il portalampada proprio come in qualsiasi altro tipo di sistema di illuminazione.
- Faretti da incasso: facili da installare, possono essere montati all’interno di molteplici superfici, come soffitti e controsoffitti in cartongesso, pannelli in legno, top da cucina, pavimenti, muretti, pareti (sia in cartongesso che in muratura), mensole e all’interno di tutti gli elementi dove è possibile praticare un foro. La loro struttura, una volta montati, fuoriesce dal muro, in un perfetto gioco tra luce e design. Oltre che all’interno, sono adatti a essere utilizzati all’esterno, per illuminare i balconi o come segna passo per marciapiedi, vialetti, strade. Come guida nei percorsi, sono utili anche indoor, anche lungo i gradini di una scala. Una volta installati, si integrano perfettamente all’interno del muro o del controsoffitto; per un effetto a scomparsa totale vanno scelti modelli con portalampada in gesso, da dipingere nello stesso colore della parete o soffitto in cui sono inseriti.
Foto faretto a incasso di Ideal Lux https://www.ideal-lux.com/it

Fissi e direzionabili: a plafone sono inseriti faretti a incasso, fissi sopra i fuochi e direzionabili al centro stanza. Foto di Delta Light, https://www.deltalight.it
Foto faretto a incasso di Ideal Lux https://www.ideal-lux.com/it
La luce giusta (anche dei faretti) nei diversi ambienti
In alcune stanze i faretti bastano, da soli, a illuminare nel modo corretto, in altre vanno integrati con lampade che assicurino un’illuminazione diffusa.
Ingresso e corridoio
Sono le zone di passaggio, ma il primo è anche il luogo che accoglie gli ospiti e dove ci si dà l’ultima occhiata prima di uscire. Faretti o applique sono la scelta giusta.
Soggiorno e sala da pranzo
Destinati ai pasti e alle ore di relax o, talvolta, di lavoro, questi ambienti hanno bisogno di luci diverse a seconda della zona. Una sospensione va prevista sopra il tavolo (due se particolarmente lungo), una lampada da lettura vicino agli imbottiti; nella zona conversazione, anche i faretti a incasso assicurano una luce rilassante, oltre a lampade da terra o applique.
Cucina
È spesso il luogo preferito della casa e soprattutto più utilizzato, per questo deve essere ben illuminato. Occorre predisporre lampade centrali a sospensione e faretti a soffitto sopra la zona coi fuochi o il lavello oppure sotto le mensole o i pensili, anche direzionabili in corrispondenza del tavolo. La tonalità della luce deve essere calda, sono invece sconsigliate quelle colorate, che falsano il colore dei cibi.
Bagno
Ci vogliono luci dirette su sanitari, vasca e doccia. Mentre almeno due faretti a luce bianca devono illuminare lo specchio.
Camera da letto
Destinata al riposo, può essere illuminata da faretti a incasso – meglio se dotati di regolatore d’intensità – con temperatura di colore calda per favorire il sonno e rendere l’ambiente confortevole. Piccole abat-jour sul comodino completano l’illuminazione.
Vialetti e giardino
Qui sono perfetti i faretti da incasso da terra con lampadine a led. Devono possedere la certificazione IP44 o altre superiori, che ne attestino la resistenza agli agenti atmosferici.
Faretti come luci d’accento per illuminare quadri (e specchi)
Un elemento da tenere in considerazione è la corretta illuminazione dei quadri che deve avere, innanzitutto, lo scopo di evidenziarne la superficie, senza danneggiarla, senza disturbare il campo visivo né alterare le sfumature e le tonalità dei colori. È da evitare l’esposizione alla luce solare, mentre quella artificiale deve essere tenue (fredda o calda a seconda dei gusti e dell’arredo) e direzionata in modo da esaltarne il soggetto. È possibile prevedere sia faretti a vista singoli o su binario sia incassati nel soffitto, nel pavimento o nei mobili in modo da creare un fascio di luce diretto e suggestivo. Lo stesso criterio vale per le lampade sopra gli specchi.
Caratteristiche tecniche dei faretti
Specificatamente studiati per rispondere a particolari esigenze di illuminazione, le loro caratteristiche principali sono:
- potenza, espressa in watt (W) espressa in watt (W), indica il consumo energetico del prodotto. Con l’avvento dei LED, questo valore è diventato meno indicativo rispetto al passato per giudicare la luminosità di una lampada, in quanto i LED offrono una maggiore efficienza energetica rispetto alle tecnologie tradizionali.
- tensione, in volt (V), specifica il tipo di alimentazione richiesta dal faretto. Alcuni modelli, in particolare quelli a bassa tensione, richiedono l’uso di un trasformatore.
- temperatura di colore, in gradi Kelvin (K), definisce il tipo di luce emessa (calda, neutra o fredda), un aspetto cruciale per l’atmosfera desiderata.
- flussi luminosi, espressi in Lumen (LM), è il parametro più importante per valutare la quantità di luce emessa. Questo valore consente di confrontare prodotti diversi indipendentemente dalla tecnologia impiegata
- efficienza luminosa, calcolata come rapporto tra il flusso luminoso (lm) e la potenza assorbita (W), esprime il rendimento del dispositivo. Oggi, i LED raggiungono livelli di efficienza molto elevati, superando spesso i 100 lm/W.
- indice di resa cromatica (CRI): introdotto come parametro essenziale, indica la capacità di un faretto di riprodurre i colori in modo naturale. Un CRI superiore a 80 è considerato adeguato per la maggior parte degli ambienti, mentre per applicazioni specifiche, come negozi o gallerie d’arte, è preferibile un valore superiore a 90.
La “temperatura” dei faretti: come scegliere tra luce calda e luce fredda
La temperatura del colore, espressa in gradi Kelvin (K), determina la tonalità della luce prodotta da una sorgente luminosa, influenzando l’atmosfera e la percezione degli spazi. In generale, si distinguono tre categorie principali:
- Luce calda (fino a 3300 K): tende al rosso, giallo o arancione, creando un’atmosfera accogliente e rilassante. Tipica delle lampade a 2700-3000 K, viene spesso scelta per abitazioni e ambienti che richiedono un effetto confortevole.
- Luce neutra (tra 3300 e 5300 K): appare più bianca e bilanciata, ideale per spazi funzionali come uffici, cucine o bagni.
- Luce fredda (oltre 5300 K): presenta sfumature azzurre o bluastre, conferendo un aspetto moderno e asettico, usata spesso in ambienti commerciali o medici.
La scelta tra luce calda, neutra o fredda dipende dall’utilizzo e dal tipo di ambiente. Negli spazi domestici si predilige generalmente la luce calda (2700-3000 K) per soggiorni e camere da letto, mentre una luce neutra o fredda (4000-5000 K) è più adatta per aree di lavoro o studio. Per i bagni, le soluzioni a 4000 K risultano ottimali, combinando funzionalità e comfort visivo.
Negli ultimi anni, la tendenza è di utilizzare LED ad alta resa cromatica (CRI), spesso superiore a 90, per garantire una qualità di luce migliore e più naturale. Le tecnologie moderne offrono LED con temperatura di colore regolabile (spesso definito Tunable White) che consentono di passare da tonalità calde a fredde a seconda delle necessità. Inoltre, molte soluzioni attuali incorporano anche l’effetto simile alla luce solare , ossia una luce che riproduce in modo più fedele lo spettro solare, per una migliore percezione visiva
Faretti con sensori di movimento
Come si cambia la lampadina ai faretti?
Se i faretti sono alimentati da led, nella maggior parte dei casi non vanno mai sostituiti, ma dopo svariati anni si cambia l’intera lampada. Nel caso delle alogene, per gli spot a incasso di norma basta sfilare il filetto esterno (che funziona come una molla) e tirare leggermente la lampadina, inserita a pressione con due dentini nel portalampada. Prima di iniziare, staccare la luce dal contatore principale.
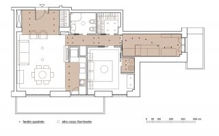
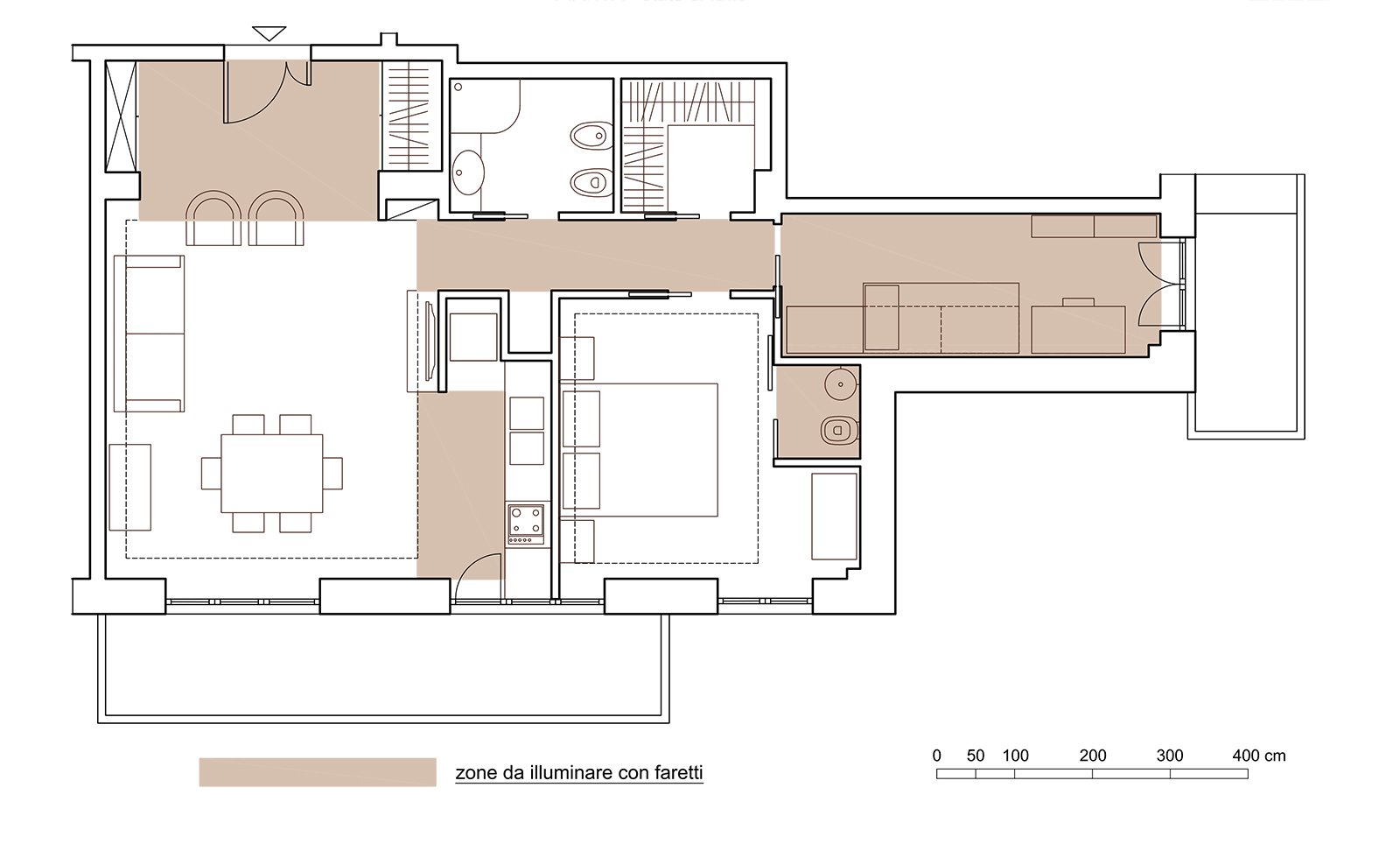
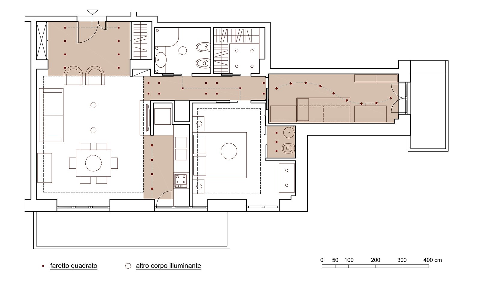
Un progetto in pianta con faretti
In questa abitazione, raffigurata in pianta dal progetto delll’architetto Ornella Musilli, si è scelto di inserire faretti a soffitto in diversi ambienti: ingresso e corridoio, cucina, camera dei ragazzi e bagnetto. Il numero delle sorgenti luminose deve essere valutato in base alla tipologia, potenza elettrica e al sistema di illuminazione complessivo dell’appartamento.
Ecodesign anche per le luci: aggiornamenti sulla normativa
Le normative europee, come il Regolamento UE 2019/2020 Regolamento sull’Ecodesign per il settore illuminazione, si concentrano sull’ecodesign dei prodotti e sull’efficienza energetica. Dal 2024, è richiesta l’integrazione di sistemi di etichettatura energetica più dettagliati, come il registro EPREL, per garantire trasparenza sui consumi e sulla sostenibilità dei prodotti di illuminazione. Inoltre, i nuovi requisiti richiedono maggiore attenzione alla durabilità e riparabilità dei dispositivi, in linea con le iniziative europee sulla sostenibilità e l’economia circolare.
Con l’obsolescenza progressiva delle lampade alogene, i faretti a led dominano il mercato grazie a una serie di vantaggi, tra cui la maggiore durata, l’efficienza energetica e la ridotta necessità di manutenzione. Per le applicazioni in cui si desidera un effetto luminoso uniforme, sono disponibili modelli con ottiche avanzate, come i profili lineari e moduli integrati per sistemi smart lighting.
Faretti a spot

Il faretto decorativo Loob New cromo di Inspire in vendita da Leroy Merlin è caratterizzato da un modulo Led integrato con luce di colore giallo, che lo rende più efficiente e duraturo, montato su una struttura in metallo cromato; è garantito 5 anni. Misura L 14 x P 8 x H 16 cm. Prezzo 12,99 euro. https://www.leroymerlin.it

Essenziale e moderno il faretto spot Allivi in vendita da Conforama: è realizzato in metallo nero con una raffinata finitura satinata; permette di ottenere un’illuminazione concentrata grazie al portalampada orientabile. Misura L 12 x P 8 x H 10 cm. Prezzo 9,99 euro. https://www.conforama.it

Iconico il faretto Tolomeo di Artemide che è caratterizzato dalla presenza della testa che può essere orientata in ogni direzione. È realizzato in alluminio. Misura P 270 x H 230 cm. Prezzo a partire da 165 euro. https://www.artemide.com

Può essere usato per mettere in risalto con la luce un quadro sulla parete il faretto da soffitto NYMÅNE di Ikea Italia: è realizzato in acciaio rivestito a polvere bianco. Può essere facilmente orientato per un’illuminazione a “regola d’arte”. Misura Ø 8 x H 13 cm. Prezzo 15 euro. https://www.ikea.com

Ha il corpo in alluminio bianco lucido Wan Ceiling/Wall di Flos la lampada a soffitto a illuminazione diretta che, grazie alla sua forma iconica, decora il soffitto. È dotata di schermo antiabbagliamento e di due differenti anelli con finitura verde e nero, che hanno la funzione di fissare il vetro temperato di sicurezza. Misura Ø 11,5 x H 8,9 cm Prezzo 200 euro. https://www.flos.com

Pregiato ottone naturale per il faretto spot cilindrico Urban di Il Bronzetto che permette di direzionare la luce che è filtrata da una griglia in ottone per dà vita ad un morbido effetto di diffusione. Il corpo principale ha la superficie rigata per un effetto rétro. Misura Ø 6 x H 19 cm. Prezzo 415 euro. https://www.ilbronzetto.com

Un paralume sfaccettato per il faretto Noc di Hay in vendita su Nordic Nest che è realizzato in alluminio nella raffinata colorazione bianco sporco. Misura L 11,8 x P 22 x H 14 cm. Prezzo 229 euro. https://www.nordicnest.it

Sono applicati con un binario i mini faretti cilindrici Tracklight Spot Mini Cylinder di Ledvance che permettono di illuminare anche un soggiorno ampio. Sono realizzati in acciaio verniciato bianco. Misurano L 6,5 x P 13,5 x H 9,3 cm. Prezzo 16,90 euro cad. https://www.ledvance.it

Alluminio tornito e verniciato per il faretto total black Rocchetto Maxi P di QU che, grazie alla testa cilindrica orientabile di 360° lungo l’asse verticale e 90° lungo l’asse orizzontale, può illuminare perfettamente qualsiasi angolo nell’ambiente. È disponibile con tre diverse ottiche per ottenere scenografie differenti. Misura Ø 5,5 x H 10,5 cm. Prezzo a partire da 245 euro. https://www.qu-lighting.com

I faretti da soffitto Castro in vendita su Westwing sono funzionali e scenografici nello stesso tempo: infatti illuminano il piano di lavoro della cucina e danno vita ad un raffinato segno grafico nella composizione. I sottili paralumi cilindrici sono realizzati in acciaio rivestito Nero opaco. Misurano Ø 6 x H 30 cm. Prezzo 54,99 euro cad. https://www.westwing.it
Faretti a incasso

Sono adatti all’installazione su soffitti in cartongesso o a pannelli i faretti da incasso in alluminio pressofuso con ghiera rotondo Nova di Ideal Lux. Sono orientabili a 360° e estraibili fino a 90° rispetto all’asse verticale. Sono disponibili nella finitura nero opaco o bianco opaco e in due formati. Misurano Ø 10 x H 11 cm. Misura Ø 15 x H 13,8 cm. Prezzo a partire da 75 euro. https://www.ideal-lux.com

I faretti in ottone e polimetacrilato Schegge di Zava sono caratterizzati da una forma irregolare e possono essere installati da soli o in composizioni multiple per dare vita a giochi di luce sulla parete. Inoltre, possono essere usati come applique o come segnapasso. Sono disponibili in quattro formati. Prezzo 315 euro. https://www.zavaluce.it

Il faretto da incasso Stchu-Moon di Catellani & Smith ha la coppetta in alluminio con la superficie irregolare rivestita in foglia d’oro che la rende scenografica e decorativa. Misura Ø 14 x H 15 cm. Prezzo 298,90 euro. https://www.catellanismith.com

Illuminano la scala rendendola sicura e scenografica i faretti quadrati da incasso MINI SPOT Q1 di LE+D che sono caratterizzati da una finitura anodizzante argento lucido. Misura L 33 x P 33 cm. Prezzo su progetto. https://www.lightengineering.net

Sono facili da installare, grazie all’innesto a baionetta, i faretti a LED da incasso Gypsum ColoRing di Linea Light Group che hanno il corpo realizzato in gesso verniciabile che permette di integrarli perfettamente in qualsiasi soffitto. Inoltre, possono essere impreziositi dai Ring rotondi colorati che aggiungono un tocco di personalità e creatività all’ambiente: disponibili nei colori bianco, nero, oro e rame. Misurano Ø 110 x 180 cm. Prezzo a partire da 126,88 euro. https://www.linealight.com

Illuminano il corridoio i faretti da incasso Crystal di iGuzzini con il loro design essenziale, l’ altissimo comfort visivo e la straordinaria efficienza luminosa. L’effetto decorativo è accentuato dalla cornice traslucida che raccoglie, impreziosisce e distribuisce la luce emessa dal riflettore in tanti riflessi cristallini e bagliori magici. Misurano L 19,6 x P 7,6 x H 5,8 cm. Prezzo su richiesta. https://www.iguzzini.com

Sono distribuite sul soffitto del soggiorno moderno le lampade a incasso Cole Coin di Paulmann in vendita su Home24: sono realizzate in alluminio e materiale plastico. Misurano Ø 9 x H 9 cm Prezzo 139,99 euro (per il set da 3 pezzi). https://www.home24.it

Una doppia ghiera intercambiabile per il faretto rotondo da incasso di Deghi che è in policarbonato bianco ed è dotato di una luce a Led di colore bianco naturale. Grazie alla sua colorazione può essere installato ad incasso nel soffitto e permette di illuminare il bancone della cucina. Misura Ø 4,4 x H 2,8 cm. Prezzo 6 euro. https://www.deghi.it





























































