Gli spazi storici di un antico palazzo sono stati reinterpretati grazie alla versatilità e all’eleganza dei sistemi d’arredo Caccaro che dialogano con l’architettura esistente. Si tratta di un prestigioso edificio in stile Liberty, situato nel cuore di Cremona. Completamente ristrutturato, rappresenta un affascinante esempio dell’architettura della città, con ambienti eleganti e ricchi di dettagli storici.
Il progetto d’interni è stato seguito dall’interior designer Greta Cogni di Pialorsi Interior Workshop, punto vendita dalle elevate capacità progettuali che da tempo collabora proficuamente con Caccaro. La selezione degli arredi e la progettazione dell’illuminazione hanno avuto un ruolo cruciale anche nella distribuzione degli spazi, guidando lo studio di questo restyling. L’obiettivo? Creare un ambiente armonioso e funzionale, capace di rispondere alle esigenze della committenza con soluzioni su misura, versatili e perfettamente integrate nel contesto architettonico.

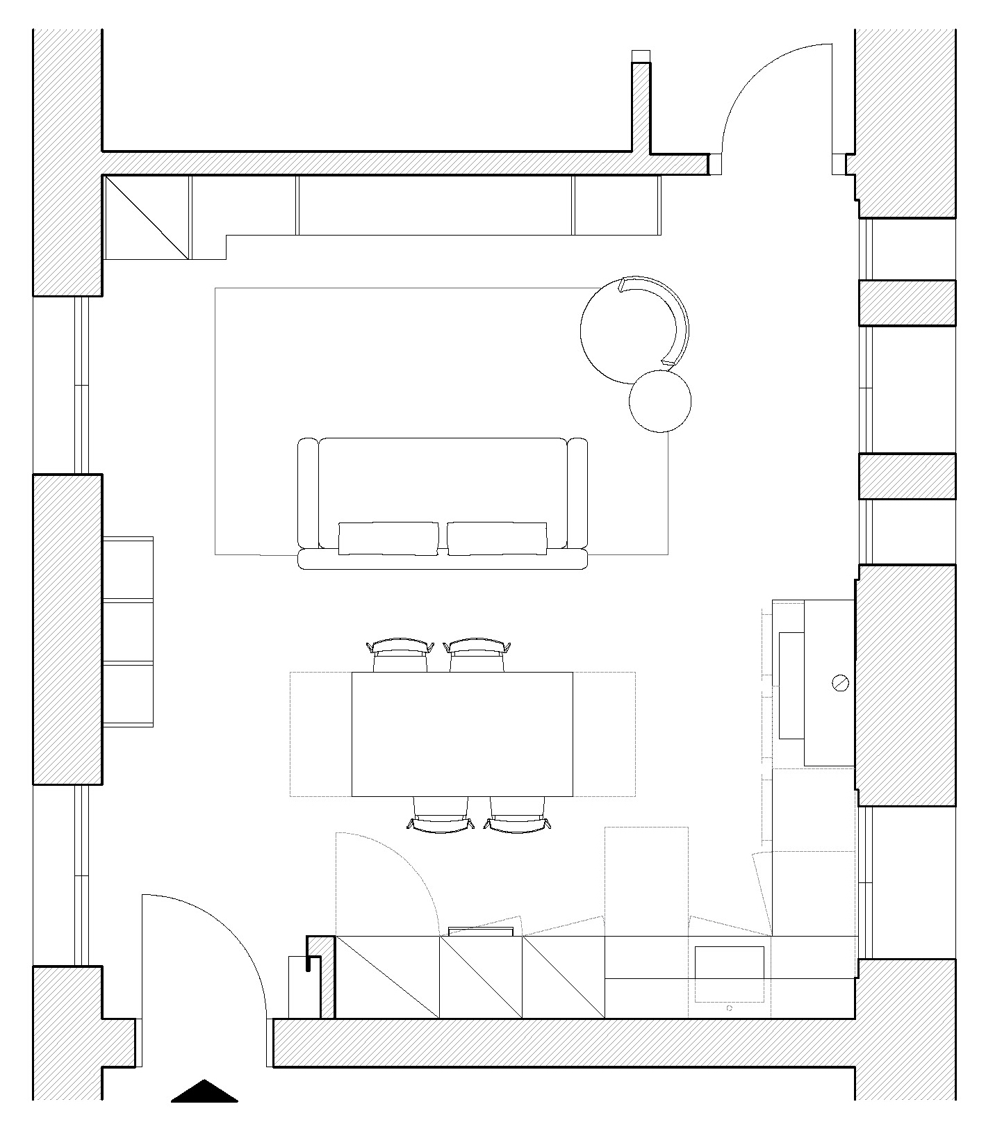
Un living raffinato e ricco di personalità
I prodotti Caccaro sono stati scelti per la zona giorno per la loro straordinaria capacità di adattarsi a qualsiasi contesto abitativo. Il sistema Freedhome, in particolare, con la sua estetica essenziale e l’ampia varietà di materiali, ha permesso di raggiungere un alto livello di personalizzazione, mantenendo un design pulito ed elegante.
Oltre all’aspetto estetico, un elemento chiave è la funzionalità: i sistemi Caccaro offrono soluzioni intelligenti per l’organizzazione e l’ottimizzazione degli spazi, rispondendo con efficacia anche alle configurazioni più complesse.
Contenitori capienti, ma leggeri
Le soluzioni adottate rispecchiano pienamente le esigenze della famiglia committente: moduli capienti studiati per contenere e dissimulare lo schermo del televisore, preservando la leggerezza visiva dell’ambiente. L’obiettivo era creare uno spazio raffinato e funzionale, in sintonia con la luminosità degli interni.
L’importanza delle scelte cromatiche
Per raggiungere questo equilibrio, il progetto ha privilegiato una palette di tonalità chiare, introducendo un unico elemento di contrasto nella nicchia del televisore. Rifinita in eucalipto, questa scelta richiama le venature del pavimento in legno, aggiungendo un tocco di calore e continuità materica. A valorizzare ulteriormente la composizione, i led integrati ai lati della nicchia, che ne esaltano i volumi e conferiscono un effetto scenografico.
Un mobile, tante esigenze
L’organizzazione interna del mobile è stata progettata per ottimizzare ogni centimetro: i moduli più profondi sono stati adattati a funzione di cappottiera, una soluzione spesso complessa da realizzare in un ingresso. Il resto della composizione gioca con variazioni di profondità e illuminazione, creando un sistema di arredo che non solo risponde alle necessità pratiche, ma si integra perfettamente con l’identità storica del palazzo.
Il progetto rappresenta un perfetto equilibrio tra esigenze pratiche ed estetiche, dimostrando come un’attenta progettazione e la scelta di arredi versatili possano valorizzare al meglio gli spazi, anche in un contesto storico dalla forte personalità. L’utilizzo dei prodotti Caccaro ha permesso di coniugare funzionalità e personalizzazione, offrendo una soluzione su misura perfetta per esaltare la bellezza e l’eleganza dell’immobile.
Contenuto sponsorizzato

















































