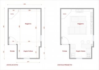
Spesso la presenza di porte e finestre sulle pareti ostacolano un po’ nella scelta degli arredi. In particolare la nostra lettrice Elisa F. ci racconta del suo angolo cottura in soggiorno che, essendo inserito in una specie di profonda rientranza, risulta difficile da arredare per la presenza nel mezzo di un serramento. Ecco il progetto che il nostro esperto ha stilato per lei.
- Risponde MODOURBANO Architettura www.modourbano.it
Il progetto non prevede interventi murari ma un’opzione realizzabile attraverso la sola configurazione degli spazi attraverso l’arredo. La cucina si sviluppa sulle due pareti non occupate da finestrature; a dividere lo spazio tra la zona giorno e l’angolo cottura trova posta una penisola, estensione naturale del piano di lavoro della cucina ma anche tavolo per due persone, adatto alle colazioni ed ai pasti principali. Il bancone della cucina attrezzato come zona pranzo e, se necessario, anche come base per contenere permette di guadagnare spazio e separare il soggiorno dalla zona operativa. Ecco il progetto che il nostro esperto ha preparato in risposta alla richiesta di Elisa F.
La soluzione permette di comprimere in un piccolo spazio le due funzioni all’interno dello stesso locale senza sacrificare ulteriormente la zona relax. Laccature e nuance di colore delle ante della cucina vengono riproposte nel mobile libreria e nella parete attrezzata per uniformare e rendere omogeneo anche visivamente lo spazio; in questo modo il divano diventa l’elemento centrale del locale principale, in posizione privilegiata rispetto all’illuminazione della stanza e in diretta corrispondenza del mobile tv e del camino esistente.
Clicca sulle immagini per vederle full screen










































